Elected Officials
Courts
Departments
Initiatives
Open Government
About
Login / Register
Home
/
Property & Tax Records
/
Property Records
/
Property & Tax Search
/
Parcel Profile
/
Print View
Search for Another Parcel
Parcel Profile
Historical Card
Sketches
Photos
Tax Map
Taxes
Print View
Print This Page
Address: 8241 REMINGTON RD
Parcel: 37025109000105
Parcel Profile
Address
8241 | REMINGTON | RD
Street Status
PAVED
School District
NORTH EAST SCHOOL
Acreage
0.6026
Classification
R
Land Use Code
SINGLE FAMILY
Legal Description
8241 REMINGTON RD 150 X 174.99
Square Feet
1808
Topo
LEVEL
Utility
WELL | SEPTIC
Zoning
Please contact your municipal zoning officer
Deed Book
0834
Deed Page
2227
2026 Tax Values
Land Value / Taxable
44,300 / 44,300.00
Building Value / Taxable
111,160 / 111,160.00
Total Value / Taxable
155,460 / 155,460.00
Clean & Green
Inactive
Homestead Status
Active
Farmstead Status
Inactive
Lerta Amount
0
Lerta Expiration Year
0
Residential Data
Card 1
Style
OLD STYLE
Basement
FULL
Year Built
1900
Exterior Wall
ALUMINUM/VINYL
Total Living Area
1808
Full Baths
1
Half Baths
1
Fuel Type
OIL
Heating
CENTRAL
Heating System
FORCED AIR
Stories
2.0
Total Bedrooms
4
Total Family Rooms
1
Total Rooms
9
Fireplaces
0
Other Buildings & Yards
Description
Built
Width
Length
Area
FOUR SIDE CLOSED MTL POLE BLDG
2000
32
40
1280
Sales History
Sale Date
Type
Price
Book / Page
Other Info
12/14/2001
LAND & BUILDING
134000
0834 / 2227
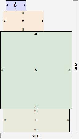
Parcel Sketches
Residential Card 1
A
MAIN
840 square feet
B
1S FR ONE STORY FRAME
128 square feet
C
OFP OPEN FRAME PORCH
234 square feet
D
WDDCK WOOD DECKS
32 square feet
Parcel Images
Please note:
this tab is for informational purposes only and may not show all delinquencies, see the Taxes tab for more accurate delinquent taxes due.