Elected Officials
Courts
Departments
Initiatives
Open Government
About
Login / Register
Home
/
Property & Tax Records
/
Property Records
/
Property & Tax Search
/
Parcel Profile
/
Print View
Search for Another Parcel
Parcel Profile
Historical Card
Sketches
Photos
Tax Map
Taxes
Print View
Print This Page
Address: 8191 GULF RD
Parcel: 37026079000400
Parcel Profile
Address
8191 | GULF | RD
Street Status
PAVED
School District
NORTH EAST SCHOOL
Acreage
48.3000
Classification
F
Land Use Code
20 - 79.99 ACRES
Legal Description
8191 GULF RD TR 148 48.3 AC | REF 2007-198
Square Feet
3604
Topo
ROLLING
Utility
GAS | WELL | SEPTIC
Zoning
Please contact your municipal zoning officer
Deed Book
1555
Deed Page
0274
2026 Tax Values
Land Value / Taxable
190,200 / 27,500.00
Building Value / Taxable
183,000 / 183,000.00
Total Value / Taxable
373,200 / 210,500.00
Clean & Green
Active
Homestead Status
Active
Farmstead Status
Active
Lerta Amount
0
Lerta Expiration Year
0
Residential Data
Card 1
Style
CONVENTIONAL
Basement
FULL
Year Built
1900
Exterior Wall
ALUMINUM/VINYL
Total Living Area
2232
Full Baths
2
Half Baths
0
Fuel Type
GAS
Heating
CENTRAL
Heating System
FORCED AIR
Stories
2.0
Total Bedrooms
3
Total Family Rooms
0
Total Rooms
6
Fireplaces
0
Card 2
Style
OLD STYLE
Basement
FULL
Year Built
1820
Exterior Wall
ALUMINUM/VINYL
Total Living Area
1372
Full Baths
1
Half Baths
0
Fuel Type
GAS
Heating
CENTRAL
Heating System
FORCED AIR
Stories
1.5
Total Bedrooms
2
Total Family Rooms
0
Total Rooms
4
Fireplaces
0
Other Buildings & Yards
Description
Built
Width
Length
Area
FRAME OR CB DETACHED GARAGE
1900
32
64
2048
FOUR SIDE CLOSED MTL POLE BLDG
2017
40
80
3200
DETACHED OPEN FR PORCH
2017
80
12
960
Sales History
Sale Date
Type
Price
Book / Page
Other Info
4/14/2009
LAND & BUILDING
130000
1555 / 0274
WARRANTY/SURVIVORSHIP DEED
7/18/1986
0
1639 / 0009
Parcel Sketches
Residential Card 1
A
MAIN
780 square feet
B
1S FR ONE STORY FRAME
288 square feet
C
WDDCK WOOD DECKS
130 square feet
D
1S FR ONE STORY FRAME
384 square feet
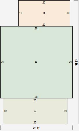
Residential Card 2
A
MAIN
784 square feet
B
EFP ENCL FRAME PORCH
200 square feet
C
OFP OPEN FRAME PORCH
250 square feet
Parcel Images
Please note:
this tab is for informational purposes only and may not show all delinquencies, see the Taxes tab for more accurate delinquent taxes due.