Elected Officials
Courts
Departments
Initiatives
Open Government
About
Login / Register
Home
/
Property & Tax Records
/
Property Records
/
Property & Tax Search
/
Parcel Profile
/
Print View
Search for Another Parcel
Parcel Profile
Historical Card
Sketches
Photos
Tax Map
Taxes
Print View
Print This Page
Address: 12580 KERR RD
Parcel: 37027111000800
Parcel Profile
Address
12580 | KERR | RD
Street Status
PAVED
School District
NORTH EAST SCHOOL
Acreage
14.1200
Classification
F
Land Use Code
10-19.99 ACRES
Legal Description
12580 KERR RD 14.12 AC
Square Feet
1371
Topo
LEVEL | ROLLING
Utility
WELL | SEPTIC
Zoning
Please contact your municipal zoning officer
Deed Book
0419
Deed Page
1931
2026 Tax Values
Land Value / Taxable
68,800 / 7,400.00
Building Value / Taxable
83,830 / 83,830.00
Total Value / Taxable
152,630 / 91,230.00
Clean & Green
Active
Homestead Status
Active
Farmstead Status
Active
Lerta Amount
0
Lerta Expiration Year
0
Residential Data
Card 1
Style
RANCH
Basement
FULL
Year Built
1900
Exterior Wall
ALUMINUM/VINYL
Total Living Area
1371
Full Baths
1
Half Baths
0
Fuel Type
OIL
Heating
CENTRAL
Heating System
FORCED AIR
Stories
1.0
Total Bedrooms
4
Total Family Rooms
0
Total Rooms
6
Fireplaces
0
Other Buildings & Yards
Description
Built
Width
Length
Area
MASONRY SHED
1960
44
29
1276
FOUR SIDE CLOSED WD POLE BLDG
1995
44
40
1760
Sales History
Sale Date
Type
Price
Book / Page
Other Info
1/5/1996
0
0419 / 1931
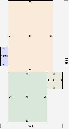
Parcel Sketches
Residential Card 1
A
MAIN
520 square feet
B
UNFIN BSMT BASEMENT UNFINISHED 1S FR ONE STORY FRAME
851 square feet
C
WDDCK WOOD DECKS
72 square feet
D
WDDCK WOOD DECKS
40 square feet
Parcel Images