Elected Officials
Courts
Departments
Initiatives
Open Government
About
Login / Register
Home
/
Property & Tax Records
/
Property Records
/
Property & Tax Search
/
Parcel Profile
/
Print View
Search for Another Parcel
Parcel Profile
Historical Card
Sketches
Photos
Tax Map
Taxes
Print View
Print This Page
Address: 12155 KERR RD
Parcel: 37027114001001
Parcel Profile
Address
12155 | KERR | RD
Street Status
PAVED
School District
NORTH EAST SCHOOL
Acreage
2.2900
Classification
R
Land Use Code
SINGLE FAMILY
Legal Description
SHERMAN RD 2.29 AC
Square Feet
2846
Topo
ABOVE STREET
Utility
WELL | SEPTIC
Zoning
Please contact your municipal zoning officer
Deed Book
2021
Deed Page
016461
2026 Tax Values
Land Value / Taxable
41,700 / 41,700.00
Building Value / Taxable
131,910 / 131,910.00
Total Value / Taxable
173,610 / 173,610.00
Clean & Green
Inactive
Homestead Status
Active
Farmstead Status
Inactive
Lerta Amount
0
Lerta Expiration Year
0
Residential Data
Card 1
Style
OLD STYLE
Basement
FULL
Year Built
1900
Exterior Wall
ALUMINUM/VINYL
Total Living Area
2846
Full Baths
1
Half Baths
1
Fuel Type
OIL
Heating
CENTRAL
Heating System
HOT WATER
Stories
2.0
Total Bedrooms
5
Total Family Rooms
1
Total Rooms
10
Fireplaces
1
Other Buildings & Yards
Description
Built
Width
Length
Area
FRAME OR CB DETACHED GARAGE
1900
16
22
352
FRAME OR CB DETACHED GARAGE
2023
0
0
900
Sales History
Sale Date
Type
Price
Book / Page
Other Info
6/25/2021
LAND & BUILDING
250000
2021 / 016461
SPECIAL WARRANTY DEED
12/31/2020
LAND & BUILDING
215000
2020 / 028387
SPECIAL WARRANTY DEED
2/8/2011
LAND & BUILDING
0
2011 / 003370
QUIT CLAIM DEED
10/7/2010
LAND & BUILDING
0
2010 / 024898
QUIT CLAIM DEED
1/1/1966
0
0943 / 0544
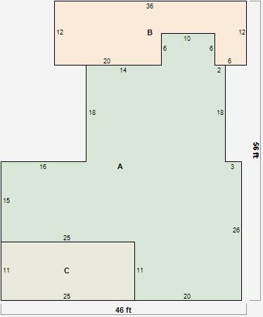
Parcel Sketches
Residential Card 1
A
MAIN
1423 square feet
B
WDDCK WOOD DECKS
372 square feet
C
OFP OPEN FRAME PORCH
275 square feet
Parcel Images
Please note:
this tab is for informational purposes only and may not show all delinquencies, see the Taxes tab for more accurate delinquent taxes due.