Elected Officials
Courts
Departments
Initiatives
Open Government
About
Login / Register
Home
/
Property & Tax Records
/
Property Records
/
Property & Tax Search
/
Parcel Profile
/
Print View
Search for Another Parcel
Parcel Profile
Historical Card
Sketches
Photos
Tax Map
Taxes
Print View
Print This Page
Address: 10661 SIDEHILL RD
Parcel: 37031122000900
Parcel Profile
Address
10661 | SIDEHILL | RD
Street Status
PAVED
School District
NORTH EAST SCHOOL
Acreage
0.9688
Classification
R
Land Use Code
DWELLING W/ COMMERCIAL USE PRIMARY RES
Legal Description
10661 SIDEHILL RD 135 X IRR
Square Feet
1482
Topo
ABOVE STREET | STEEP
Utility
GAS | WELL | SEPTIC
Zoning
Please contact your municipal zoning officer
Deed Book
2017
Deed Page
018455
2026 Tax Values
Land Value / Taxable
39,400 / 39,400.00
Building Value / Taxable
75,070 / 75,070.00
Total Value / Taxable
114,470 / 114,470.00
Clean & Green
Inactive
Homestead Status
Active
Farmstead Status
Inactive
Lerta Amount
0
Lerta Expiration Year
0
Residential Data
Card 1
Style
RANCH
Basement
PART
Year Built
1937
Exterior Wall
ALUMINUM/VINYL
Total Living Area
1482
Full Baths
1
Half Baths
1
Fuel Type
GAS
Heating
CENTRAL
Heating System
FORCED AIR
Stories
1.0
Total Bedrooms
3
Total Family Rooms
0
Total Rooms
6
Fireplaces
0
Other Buildings & Yards
Description
Built
Width
Length
Area
FRAME OR CB DETACHED GARAGE
1988
20
30
600
Sales History
Sale Date
Type
Price
Book / Page
Other Info
8/24/2017
LAND & BUILDING
110000
2017 / 018455
DEED
9/18/2013
LAND & BUILDING
0
2013 / 024978
6/21/1956
0
0732 / 0193
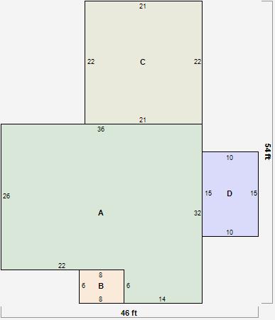
Parcel Sketches
Residential Card 1
A
MAIN
1020 square feet
B
OFP OPEN FRAME PORCH
48 square feet
C
1S FR ONE STORY FRAME
462 square feet
D
EFP ENCL FRAME PORCH
150 square feet
Parcel Images
Please note:
this tab is for informational purposes only and may not show all delinquencies, see the Taxes tab for more accurate delinquent taxes due.