Elected Officials
Courts
Departments
Initiatives
Open Government
About
Login / Register
Home
/
Property & Tax Records
/
Property Records
/
Property & Tax Search
/
Parcel Profile
/
Print View
Search for Another Parcel
Parcel Profile
Historical Card
Sketches
Photos
Tax Map
Taxes
Print View
Print This Page
Address: 10757 SIDEHILL RD
Parcel: 37031122001100
Parcel Profile
Address
10757 | SIDEHILL | RD
Street Status
PAVED
School District
NORTH EAST SCHOOL
Acreage
12.1100
Classification
F
Land Use Code
10-19.99 ACRES
Legal Description
10757 SIDEHILL RD 12.11 AC CAL
Square Feet
4082
Topo
LEVEL
Utility
GAS | WELL | SEPTIC
Zoning
Please contact your municipal zoning officer
Deed Book
2019
Deed Page
020181
2026 Tax Values
Land Value / Taxable
77,100 / 6,800.00
Building Value / Taxable
180,910 / 180,910.00
Total Value / Taxable
258,010 / 187,710.00
Clean & Green
Active
Homestead Status
Active
Farmstead Status
Inactive
Lerta Amount
0
Lerta Expiration Year
0
Residential Data
Card 1
Style
OLD STYLE
Basement
FULL
Year Built
1900
Exterior Wall
ALUMINUM/VINYL
Total Living Area
4082
Full Baths
2
Half Baths
1
Fuel Type
GAS
Heating
CENTRAL
Heating System
FORCED AIR
Stories
2.0
Total Bedrooms
4
Total Family Rooms
1
Total Rooms
8
Fireplaces
1
Other Buildings & Yards
Description
Built
Width
Length
Area
DETACHED OPEN FR PORCH
2000
0
0
304
FOUR SIDE CLOSED MTL POLE BLDG
1986
50
80
4000
FOUR SIDE CLOSED MTL POLE BLDG
1986
50
90
4500
1S LEAN TO
1985
24
50
1200
Sales History
Sale Date
Type
Price
Book / Page
Other Info
10/3/2019
LAND & BUILDING
0
2019 / 020181
SPECIAL WARRANTY DEED
1/1/1963
LAND & BUILDING
5000
0880 / 0547
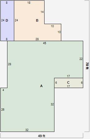
Parcel Sketches
Residential Card 1
A
MAIN
1990 square feet
B
EFP ENCL FRAME PORCH
532 square feet
C
OFP OPEN FRAME PORCH 1S FR ONE STORY FRAME
102 square feet
D
MA_PT CONC/MAS PATIO
192 square feet
Parcel Images