Elected Officials
Courts
Departments
Initiatives
Open Government
About
Login / Register
Home
/
Property & Tax Records
/
Property Records
/
Property & Tax Search
/
Parcel Profile
/
Print View
Search for Another Parcel
Parcel Profile
Historical Card
Sketches
Photos
Tax Map
Taxes
Print View
Print This Page
Address: 9712 TOWNLINE RD
Parcel: 37032127000500
Parcel Profile
Address
9712 | TOWNLINE | RD
Street Status
SEMI IMPROVED
School District
NORTH EAST SCHOOL
Acreage
57.8700
Classification
F
Land Use Code
20 - 79.99 ACRES
Legal Description
9712 TOWNLINE RD TR 107 57.87 AC
Square Feet
2228
Topo
LEVEL
Utility
WELL | SEPTIC
Zoning
Please contact your municipal zoning officer
Deed Book
2021
Deed Page
030810
2026 Tax Values
Land Value / Taxable
137,600 / 69,700.00
Building Value / Taxable
52,700 / 52,700.00
Total Value / Taxable
190,300 / 122,400.00
Clean & Green
Active
Homestead Status
Active
Farmstead Status
Inactive
Lerta Amount
0
Lerta Expiration Year
0
Residential Data
Card 1
Style
OLD STYLE
Basement
PART
Year Built
1880
Exterior Wall
ALUMINUM/VINYL
Total Living Area
2228
Full Baths
1
Half Baths
0
Fuel Type
GAS
Heating
CENTRAL
Heating System
FORCED AIR
Stories
2.0
Total Bedrooms
4
Total Family Rooms
1
Total Rooms
7
Fireplaces
0
Other Buildings & Yards
Description
Built
Width
Length
Area
FRAME UTILITY SHED
2022
0
0
324
Sales History
Sale Date
Type
Price
Book / Page
Other Info
11/18/2021
LAND & BUILDING
190000
2021 / 030810
DEED
10/2/1985
0
1600 / 0058
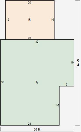
Parcel Sketches
Residential Card 1
A
MAIN
954 square feet
B
1S FR ONE STORY FRAME AT UN ATTIC-UNFINISHED
320 square feet
Parcel Images
Please note:
this tab is for informational purposes only and may not show all delinquencies, see the Taxes tab for more accurate delinquent taxes due.