Elected Officials
Courts
Departments
Initiatives
Open Government
About
Login / Register
Home
/
Property & Tax Records
/
Property Records
/
Property & Tax Search
/
Parcel Profile
/
Print View
Search for Another Parcel
Parcel Profile
Historical Card
Sketches
Photos
Tax Map
Taxes
Print View
Print This Page
Address: 8769 STATION RD
Parcel: 37034132001200
Parcel Profile
Address
8769 | STATION | RD
Street Status
PAVED
School District
NORTH EAST SCHOOL
Acreage
60.3100
Classification
F
Land Use Code
20 - 79.99 ACRES
Legal Description
8769 STATION RD 60.31 AC CAL
Square Feet
864
Topo
LEVEL
Utility
GAS | WELL | SEPTIC
Zoning
Please contact your municipal zoning officer
Deed Book
2025
Deed Page
020381
2026 Tax Values
Land Value / Taxable
142,000 / 35,900.00
Building Value / Taxable
40,500 / 40,500.00
Total Value / Taxable
182,500 / 76,400.00
Clean & Green
Active
Homestead Status
Active
Farmstead Status
Inactive
Lerta Amount
0
Lerta Expiration Year
0
Residential Data
Card 1
Style
BUNGALOW
Basement
PART
Year Built
1947
Exterior Wall
FRAME
Total Living Area
864
Full Baths
0
Half Baths
0
Fuel Type
GAS
Heating
CENTRAL
Heating System
FORCED AIR
Stories
1.0
Total Bedrooms
2
Total Family Rooms
0
Total Rooms
5
Fireplaces
0
Other Buildings & Yards
Description
Built
Width
Length
Area
BANK BARN
1947
24
32
768
FLAT BARN
1947
32
42
1344
FRAME OR CB DETACHED GARAGE
1947
20
24
480
Sales History
Sale Date
Type
Price
Book / Page
Other Info
11/14/2025
LAND & BUILDING
350000
2025 / 020381
SPECIAL WARRANTY DEED
9/28/2009
LAND & BUILDING
0
1593 / 1781
DEED
6/28/1985
0
1585 / 0537
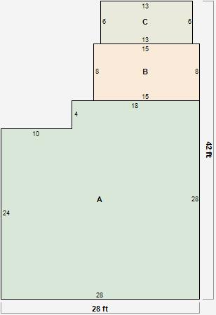
Parcel Sketches
Residential Card 1
A
MAIN
744 square feet
B
1S FR ONE STORY FRAME
120 square feet
C
OFP OPEN FRAME PORCH
78 square feet
Parcel Images
Please note:
this tab is for informational purposes only and may not show all delinquencies, see the Taxes tab for more accurate delinquent taxes due.