Elected Officials
Courts
Departments
Initiatives
Open Government
About
Login / Register
Home
/
Property & Tax Records
/
Property Records
/
Property & Tax Search
/
Parcel Profile
/
Print View
Search for Another Parcel
Parcel Profile
Historical Card
Sketches
Photos
Tax Map
Taxes
Print View
Print This Page
Address: 8385 ROUTE 18
Parcel: 38005004000400
Parcel Profile
Address
8385 | ROUTE 18
Street Status
PAVED
School District
NORTHWESTERN SCHOOL
Acreage
68.0000
Classification
F
Land Use Code
20 - 79.99 ACRES
Legal Description
8385 ROUTE 18 68 AC
Square Feet
2360
Topo
LEVEL
Utility
GAS | WELL | SEPTIC
Zoning
Please contact your municipal zoning officer
Deed Book
1361
Deed Page
1360
2026 Tax Values
Land Value / Taxable
71,900 / 47,100.00
Building Value / Taxable
126,450 / 126,450.00
Total Value / Taxable
198,350 / 173,550.00
Clean & Green
Active
Homestead Status
Inactive
Farmstead Status
Inactive
Lerta Amount
0
Lerta Expiration Year
0
Residential Data
Card 1
Style
OLD STYLE
Basement
PART
Year Built
1900
Exterior Wall
FRAME
Total Living Area
2360
Full Baths
1
Half Baths
1
Fuel Type
GAS
Heating
CENTRAL
Heating System
HOT WATER
Stories
1.5
Total Bedrooms
3
Total Family Rooms
1
Total Rooms
9
Fireplaces
1
Other Buildings & Yards
Description
Built
Width
Length
Area
BANK BARN
1900
32
44
1408
FRAME UTILITY SHED
1980
26
32
832
1S LEAN TO
1980
6
32
192
FRAME UTILITY SHED
1900
12
28
336
FRAME UTILITY SHED
1980
12
15
180
WOOD DECK
1999
10
10
100
FRAME OR CB DETACHED GARAGE
1950
22
40
880
Sales History
Sale Date
Type
Price
Book / Page
Other Info
9/15/2006
LAND & BUILDING
210000
1361 / 1360
DEED
10/19/1966
0
0949 / 0543
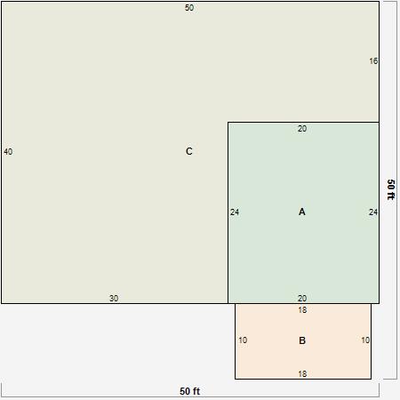
Parcel Sketches
Residential Card 1
A
MAIN
480 square feet
B
EFP ENCL FRAME PORCH
180 square feet
C
1S FR ONE STORY FRAME
1520 square feet
Parcel Images
Please note:
this tab is for informational purposes only and may not show all delinquencies, see the Taxes tab for more accurate delinquent taxes due.