Elected Officials
Courts
Departments
Initiatives
Open Government
About
Login / Register
Home
/
Property & Tax Records
/
Property Records
/
Property & Tax Search
/
Parcel Profile
/
Print View
Search for Another Parcel
Parcel Profile
Historical Card
Sketches
Photos
Tax Map
Taxes
Print View
Print This Page
Address: 9694 PEACH ST
Parcel: 38007006001100
Parcel Profile
Address
9694 | PEACH | ST
Street Status
PAVED
School District
NORTHWESTERN SCHOOL
Acreage
4.5000
Classification
R
Land Use Code
SINGLE FAMILY
Legal Description
9694 PEACH ST 4.5 AC
Square Feet
1152
Topo
LEVEL | ROLLING
Utility
WELL | SEPTIC
Zoning
Please contact your municipal zoning officer
Deed Book
2021
Deed Page
009138
2026 Tax Values
Land Value / Taxable
15,300 / 15,300.00
Building Value / Taxable
22,400 / 22,400.00
Total Value / Taxable
37,700 / 37,700.00
Clean & Green
Inactive
Homestead Status
Active
Farmstead Status
Inactive
Lerta Amount
0
Lerta Expiration Year
0
Residential Data
Card 1
Style
RANCH
Basement
FULL
Year Built
1937
Exterior Wall
FRAME
Total Living Area
1152
Full Baths
1
Half Baths
0
Fuel Type
OIL
Heating
CENTRAL
Heating System
FORCED AIR
Stories
1.0
Total Bedrooms
4
Total Family Rooms
0
Total Rooms
7
Fireplaces
0
Other Buildings & Yards
Description
Built
Width
Length
Area
ONE SIDE OPEN WD POLE BLDG
1990
30
21
630
FRAME UTILITY SHED
1990
12
13
156
FOUR SIDE WD POLE BLDG
1990
18
13
234
Sales History
Sale Date
Type
Price
Book / Page
Other Info
4/15/2021
LAND & BUILDING
0
2021 / 009138
SPECIAL WARRANTY DEED
11/21/1979
0
1372 / 0074
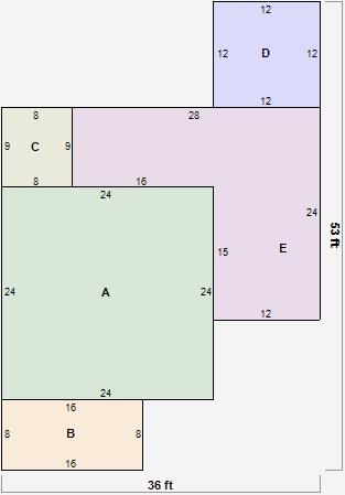
Parcel Sketches
Residential Card 1
A
MAIN
576 square feet
B
EFP ENCL FRAME PORCH
128 square feet
C
EFP ENCL FRAME PORCH
72 square feet
D
1S FR ONE STORY FRAME
144 square feet
E
1S FR ONE STORY FRAME
432 square feet
Parcel Images
Please note:
this tab is for informational purposes only and may not show all delinquencies, see the Taxes tab for more accurate delinquent taxes due.