Elected Officials
Courts
Departments
Initiatives
Open Government
About
Login / Register
Home
/
Property & Tax Records
/
Property Records
/
Property & Tax Search
/
Parcel Profile
/
Print View
Search for Another Parcel
Parcel Profile
Historical Card
Sketches
Photos
Tax Map
Taxes
Print View
Print This Page
Address: 8427 MILL ST
Parcel: 38009005000700
Parcel Profile
Address
8427 | MILL | ST
Street Status
PAVED
School District
NORTHWESTERN SCHOOL
Acreage
0.5278
Classification
R
Land Use Code
SINGLE FAMILY
Legal Description
8427 MILL ST 95 X 242
Square Feet
1456
Topo
LEVEL
Utility
GAS | WELL | SEPTIC
Zoning
Please contact your municipal zoning officer
Deed Book
2018
Deed Page
015782
2026 Tax Values
Land Value / Taxable
11,000 / 11,000.00
Building Value / Taxable
65,400 / 65,400.00
Total Value / Taxable
76,400 / 76,400.00
Clean & Green
Inactive
Homestead Status
Active
Farmstead Status
Inactive
Lerta Amount
0
Lerta Expiration Year
0
Residential Data
Card 1
Style
OLD STYLE
Basement
PART
Year Built
1899
Exterior Wall
ALUMINUM/VINYL
Total Living Area
1456
Full Baths
1
Half Baths
0
Fuel Type
GAS
Heating
CENTRAL
Heating System
FORCED AIR
Stories
2.0
Total Bedrooms
3
Total Family Rooms
0
Total Rooms
6
Fireplaces
0
Other Buildings & Yards
Description
Built
Width
Length
Area
FRAME OR CB DETACHED GARAGE
1989
24
24
576
FRAME UTILITY SHED
1995
9
24
216
Sales History
Sale Date
Type
Price
Book / Page
Other Info
8/3/2018
LAND & BUILDING
80000
2018 / 015782
SPECIAL WARRANTY DEED
10/6/2017
LAND & BUILDING
0
2017 / 021996
FIDUCIARY DEED
3/28/2017
LAND & BUILDING
0
2017 / 006159
QUIT CLAIM DEED
4/3/1997
0
0491 / 0728
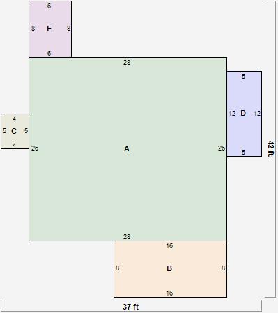
Parcel Sketches
Residential Card 1
A
MAIN
728 square feet
B
EFP ENCL FRAME PORCH
128 square feet
C
OFP OPEN FRAME PORCH
20 square feet
D
EFP ENCL FRAME PORCH
60 square feet
E
FR UT FRAME UTILITY BUILDING
48 square feet
Parcel Images
Please note:
this tab is for informational purposes only and may not show all delinquencies, see the Taxes tab for more accurate delinquent taxes due.