Elected Officials
Courts
Departments
Initiatives
Open Government
About
Login / Register
Home
/
Property & Tax Records
/
Property Records
/
Property & Tax Search
/
Parcel Profile
/
Print View
Search for Another Parcel
Parcel Profile
Historical Card
Sketches
Photos
Tax Map
Taxes
Print View
Print This Page
Address: 8483 MEADVILLE RD
Parcel: 38009006002000
Parcel Profile
Address
8483 | MEADVILLE | RD
Street Status
PAVED
School District
NORTHWESTERN SCHOOL
Acreage
0.6857
Classification
R
Land Use Code
SINGLE FAMILY
Legal Description
8483 MEADVILLE RD 74X316.21 IR
Square Feet
1704
Topo
LEVEL
Utility
GAS | WELL | SEPTIC
Zoning
Please contact your municipal zoning officer
Deed Book
2021
Deed Page
021152
2026 Tax Values
Land Value / Taxable
11,400 / 11,400.00
Building Value / Taxable
78,500 / 78,500.00
Total Value / Taxable
89,900 / 89,900.00
Clean & Green
Inactive
Homestead Status
Inactive
Farmstead Status
Inactive
Lerta Amount
0
Lerta Expiration Year
0
Residential Data
Card 1
Style
OLD STYLE
Basement
PART
Year Built
1917
Exterior Wall
ALUMINUM/VINYL
Total Living Area
1704
Full Baths
1
Half Baths
0
Fuel Type
GAS
Heating
CENTRAL
Heating System
FORCED AIR
Stories
2.0
Total Bedrooms
3
Total Family Rooms
1
Total Rooms
8
Fireplaces
0
Other Buildings & Yards
No OBY Data Found
Sales History
Sale Date
Type
Price
Book / Page
Other Info
8/9/2021
LAND & BUILDING
57000
2021 / 021152
SPECIAL WARRANTY DEED
4/9/2021
65000
2021 / 008513
SHERIFF'S DED
8/22/2007
LAND & BUILDING
88000
1441 / 0928
WARRANTY/SURVIVORSHIP DEED
7/24/2006
LAND & BUILDING
15400
1346 / 1930
WARRANTY/SURVIVORSHIP DEED
11/24/1993
0
0305 / 1333
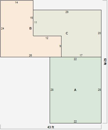
Parcel Sketches
Residential Card 1
A
MAIN
616 square feet
B
WDDCK WOOD DECKS
444 square feet
C
1S FR ONE STORY FRAME
472 square feet
Parcel Images