Elected Officials
Courts
Departments
Initiatives
Open Government
About
Login / Register
Home
/
Property & Tax Records
/
Property Records
/
Property & Tax Search
/
Parcel Profile
/
Print View
Search for Another Parcel
Parcel Profile
Historical Card
Sketches
Photos
Tax Map
Taxes
Print View
Print This Page
Address: 10413 MESSINGER RD
Parcel: 38010003000300
Parcel Profile
Address
10413 | MESSINGER | RD
Street Status
PAVED
School District
NORTHWESTERN SCHOOL
Acreage
5.7200
Classification
R
Land Use Code
MULTIPLE DWELLINGS
Legal Description
10413 MESSINGER 5.72 AC
Square Feet
1764
Topo
LEVEL
Utility
GAS | WELL | SEPTIC
Zoning
Please contact your municipal zoning officer
Deed Book
1231
Deed Page
2069
2026 Tax Values
Land Value / Taxable
16,000 / 14,300.00
Building Value / Taxable
79,280 / 79,280.00
Total Value / Taxable
95,280 / 93,580.00
Clean & Green
Active
Homestead Status
Active
Farmstead Status
Active
Lerta Amount
0
Lerta Expiration Year
0
Residential Data
Card 1
Style
OLD STYLE
Basement
PART
Year Built
1900
Exterior Wall
ALUMINUM/VINYL
Total Living Area
1764
Full Baths
1
Half Baths
1
Fuel Type
GAS
Heating
CENTRAL
Heating System
FORCED AIR
Stories
2.0
Total Bedrooms
3
Total Family Rooms
0
Total Rooms
6
Fireplaces
0
Other Buildings & Yards
Description
Built
Width
Length
Area
FOUR SIDE CLOSED MTL POLE BLDG
1985
60
145
8700
SINGLE WIDE MOBILE HOME
1982
14
67
938
SKIRTING
1982
0
0
143
WOOD DECK
1990
4
8
32
Sales History
Sale Date
Type
Price
Book / Page
Other Info
5/6/2005
LAND & BUILDING
0
1231 / 2069
QUIT CLAIM DEED
10/20/1995
0
0408 / 2115
Parcel Sketches
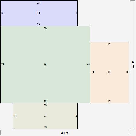
Residential Card 1
A
MAIN
672 square feet
B
1S FR ONE STORY FRAME
228 square feet
C
EFP ENCL FRAME PORCH
160 square feet
D
1S FR ONE STORY FRAME
192 square feet
Parcel Images
Please note:
this tab is for informational purposes only and may not show all delinquencies, see the Taxes tab for more accurate delinquent taxes due.