Elected Officials
Courts
Departments
Initiatives
Open Government
About
Login / Register
Home
/
Property & Tax Records
/
Property Records
/
Property & Tax Search
/
Parcel Profile
/
Print View
Search for Another Parcel
Parcel Profile
Historical Card
Sketches
Photos
Tax Map
Taxes
Print View
Print This Page
Address: 8727 PLATZ RD
Parcel: 38018008000300
Parcel Profile
Address
8727 | PLATZ | RD
Street Status
PAVED
School District
NORTHWESTERN SCHOOL
Acreage
26.3300
Classification
F
Land Use Code
20 - 79.99 ACRES
Legal Description
8727 PLATZ RD 26.33 AC
Square Feet
1900
Topo
LEVEL | ROLLING
Utility
WELL | SEPTIC
Zoning
Please contact your municipal zoning officer
Deed Book
2020
Deed Page
014251
2026 Tax Values
Land Value / Taxable
24,700 / 24,700.00
Building Value / Taxable
205,400 / 205,400.00
Total Value / Taxable
230,100 / 230,100.00
Clean & Green
Inactive
Homestead Status
Active
Farmstead Status
Inactive
Lerta Amount
0
Lerta Expiration Year
0
Residential Data
Card 2
Style
RANCH
Basement
FULL
Year Built
2020
Exterior Wall
ALUMINUM/VINYL
Total Living Area
1900
Full Baths
2
Half Baths
1
Fuel Type
PROPANE
Heating
CENTRAL A/C
Heating System
FORCED AIR
Stories
1.0
Total Bedrooms
3
Total Family Rooms
1
Total Rooms
0
Fireplaces
1
Other Buildings & Yards
Description
Built
Width
Length
Area
FOUR SIDE CLOSED MTL POLE BLDG
1990
30
60
1800
ONE SIDE OPEN MTL POLE BLDG
1990
24
26
624
FRAME OR CB DETACHED GARAGE
1960
22
30
660
CARPORT
1965
10
30
300
FOUR SIDE CLOSED MTL POLE BLDG
2005
32
60
1920
Sales History
Sale Date
Type
Price
Book / Page
Other Info
7/28/2020
LAND & BUILDING
100000
2020 / 014251
CORRECTIVE DEED
1/2/2018
LAND & BUILDING
100000
2018 / 000058
SPECIAL WARRANTY DEED
12/30/2010
LAND & BUILDING
0
2010 / 032883
FIDUCIARY DEED
7/13/1966
0
0944 / 0239
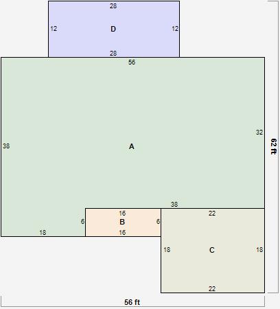
Parcel Sketches
Residential Card 2
A
MAIN
1900 square feet
B
OFP OPEN FRAME PORCH
96 square feet
C
FR GR FRAME GARAGE
396 square feet
D
WDDCK WOOD DECKS
336 square feet
Parcel Images
Please note:
this tab is for informational purposes only and may not show all delinquencies, see the Taxes tab for more accurate delinquent taxes due.