Elected Officials
Courts
Departments
Initiatives
Open Government
About
Login / Register
Home
/
Property & Tax Records
/
Property Records
/
Property & Tax Search
/
Parcel Profile
/
Print View
Search for Another Parcel
Parcel Profile
Historical Card
Sketches
Photos
Tax Map
Taxes
Print View
Print This Page
Address: 1592 HOLLIDAY RD
Parcel: 39003001004800
Parcel Profile
Address
1592 | HOLLIDAY | RD
Street Status
SEMI IMPROVED
School District
NORTHWESTERN SCHOOL
Acreage
0.5313
Classification
R
Land Use Code
SINGLE FAMILY
Legal Description
1592 HOLLIDAY RD 145.6 X 248.52 IRR
Square Feet
1620
Topo
LEVEL
Utility
GAS | WELL | SEPTIC
Zoning
Please contact your municipal zoning officer
Deed Book
2023
Deed Page
002492
2026 Tax Values
Land Value / Taxable
24,100 / 24,100.00
Building Value / Taxable
27,620 / 27,620.00
Total Value / Taxable
51,720 / 51,720.00
Clean & Green
Inactive
Homestead Status
Inactive
Farmstead Status
Inactive
Lerta Amount
0
Lerta Expiration Year
0
Residential Data
Card 1
Style
OLD STYLE
Basement
CRAWL
Year Built
1900
Exterior Wall
FRAME
Total Living Area
1620
Full Baths
1
Half Baths
0
Fuel Type
GAS
Heating
CENTRAL A/C
Heating System
FORCED AIR
Stories
2.0
Total Bedrooms
3
Total Family Rooms
0
Total Rooms
6
Fireplaces
1
Other Buildings & Yards
Description
Built
Width
Length
Area
FRAME UTILITY SHED
1980
10
10
100
Sales History
Sale Date
Type
Price
Book / Page
Other Info
2/16/2023
LAND & BUILDING
50000
2023 / 002492
SPECIAL WARRANTY DEED
8/10/2020
LAND & BUILDING
50000
2020 / 015386
FIDUCIARY DEED
9/8/1970
LAND & BUILDING
10000
1029 / 0395
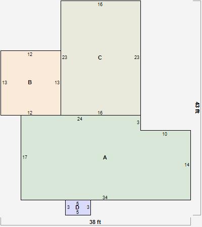
Parcel Sketches
Residential Card 1
A
MAIN
548 square feet
B
1S FR ONE STORY FRAME
156 square feet
C
1S FR ONE STORY FRAME
368 square feet
D
OFP OPEN FRAME PORCH
15 square feet
Parcel Images
Please note:
this tab is for informational purposes only and may not show all delinquencies, see the Taxes tab for more accurate delinquent taxes due.