Elected Officials
Courts
Departments
Initiatives
Open Government
About
Login / Register
Home
/
Property & Tax Records
/
Property Records
/
Property & Tax Search
/
Parcel Profile
/
Print View
Search for Another Parcel
Parcel Profile
Historical Card
Sketches
Photos
Tax Map
Taxes
Print View
Print This Page
Address: 12646 MCCHESNEY RD
Parcel: 39008027001011
Parcel Profile
Address
12646 | MCCHESNEY | RD
Street Status
PAVED
School District
NORTHWESTERN SCHOOL
Acreage
1.6000
Classification
R
Land Use Code
SINGLE FAMILY
Legal Description
12646 MCCHESNEY RD LOT 1-D 1.60 AC NET
Square Feet
2320
Topo
LEVEL
Utility
WELL | SEPTIC
Zoning
Please contact your municipal zoning officer
Deed Book
2022
Deed Page
024539
2026 Tax Values
Land Value / Taxable
25,800 / 25,800.00
Building Value / Taxable
82,600 / 82,600.00
Total Value / Taxable
108,400 / 108,400.00
Clean & Green
Inactive
Homestead Status
Active
Farmstead Status
Inactive
Lerta Amount
0
Lerta Expiration Year
0
Residential Data
Card 1
Style
OLD STYLE
Basement
PART
Year Built
1855
Exterior Wall
BRICK
Total Living Area
2320
Full Baths
1
Half Baths
0
Fuel Type
GAS
Heating
CENTRAL
Heating System
FORCED AIR
Stories
2.0
Total Bedrooms
4
Total Family Rooms
1
Total Rooms
12
Fireplaces
0
Other Buildings & Yards
Description
Built
Width
Length
Area
FLAT BARN
1910
40
62
2480
Sales History
Sale Date
Type
Price
Book / Page
Other Info
11/17/2022
LAND & BUILDING
190000
2022 / 024539
SPECIAL WARRANTY DEED
2/24/2004
LAND & BUILDING
97500
1110 / 0647
DEED
7/19/2001
LAND & BUILDING
76000
793 / 1961
7/19/2001
LAND & BUILDING
76000
0793 / 1961
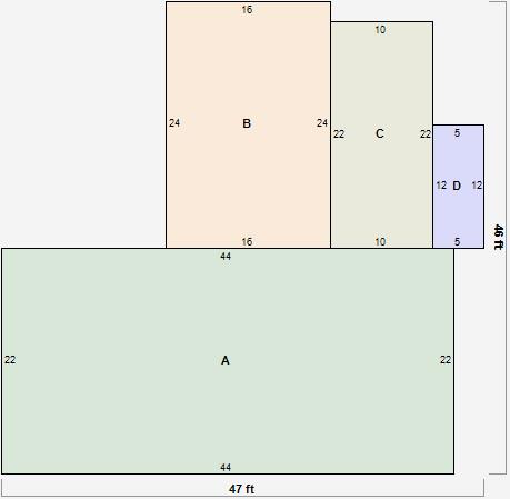
Parcel Sketches
Residential Card 1
A
MAIN
968 square feet
B
1S FR ONE STORY FRAME
384 square feet
C
EFP ENCL FRAME PORCH
220 square feet
D
WDDCK WOOD DECKS
60 square feet
Parcel Images
Please note:
this tab is for informational purposes only and may not show all delinquencies, see the Taxes tab for more accurate delinquent taxes due.