Elected Officials
Courts
Departments
Initiatives
Open Government
About
Login / Register
Home
/
Property & Tax Records
/
Property Records
/
Property & Tax Search
/
Parcel Profile
/
Print View
Search for Another Parcel
Parcel Profile
Historical Card
Sketches
Photos
Tax Map
Taxes
Print View
Print This Page
Address: 13156 W LAKE RD
Parcel: 39009026002500
Parcel Profile
Address
13156 | W | LAKE | RD
Street Status
PAVED
School District
NORTHWESTERN SCHOOL
Acreage
28.8900
Classification
F
Land Use Code
20 - 79.99 ACRES
Legal Description
13156 W LAKE RD 28.89 AC
Square Feet
1459
Topo
LEVEL
Utility
GAS | WELL | SEPTIC
Zoning
Please contact your municipal zoning officer
Deed Book
0163
Deed Page
1928
2026 Tax Values
Land Value / Taxable
43,200 / 43,200.00
Building Value / Taxable
80,300 / 80,300.00
Total Value / Taxable
123,500 / 123,500.00
Clean & Green
Inactive
Homestead Status
Active
Farmstead Status
Inactive
Lerta Amount
0
Lerta Expiration Year
0
Residential Data
Card 1
Style
BUNGALOW
Basement
FULL
Year Built
1925
Exterior Wall
ALUMINUM/VINYL
Total Living Area
1459
Full Baths
1
Half Baths
0
Fuel Type
GAS
Heating
CENTRAL
Heating System
FORCED AIR
Stories
1.0
Total Bedrooms
2
Total Family Rooms
0
Total Rooms
6
Fireplaces
1
Other Buildings & Yards
Description
Built
Width
Length
Area
FRAME OR CB DETACHED GARAGE
1954
16
24
384
1S LEAN TO
1990
15
24
360
FOUR SIDE CLOSED WD POLE BLDG
1990
20
24
480
FLAT BARN
1954
25
36
900
FLAT BARN ADDITION
1990
18
36
648
Sales History
Sale Date
Type
Price
Book / Page
Other Info
6/10/1991
0
0163 / 1928
6/10/1991
LAND & BUILDING
82900
0163 / 1928
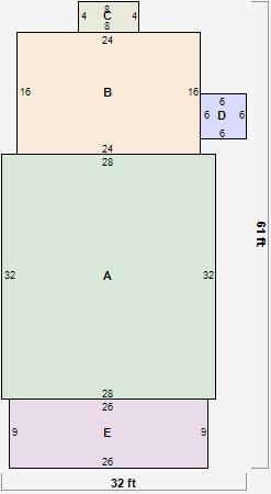
Parcel Sketches
Residential Card 1
A
MAIN
896 square feet
B
1S FR ONE STORY FRAME
384 square feet
C
WDDCK WOOD DECKS
32 square feet
D
WDDCK WOOD DECKS
36 square feet
E
OFP OPEN FRAME PORCH
234 square feet
Parcel Images
Please note:
this tab is for informational purposes only and may not show all delinquencies, see the Taxes tab for more accurate delinquent taxes due.