Elected Officials
Courts
Departments
Initiatives
Open Government
About
Login / Register
Home
/
Property & Tax Records
/
Property Records
/
Property & Tax Search
/
Parcel Profile
/
Print View
Search for Another Parcel
Parcel Profile
Historical Card
Sketches
Photos
Tax Map
Taxes
Print View
Print This Page
Address: 13143 W LAKE RD
Parcel: 39009030000800
Parcel Profile
Address
13143 | W | LAKE | RD
Street Status
PAVED
School District
NORTHWESTERN SCHOOL
Acreage
1.4550
Classification
R
Land Use Code
SINGLE FAMILY
Legal Description
13143 W LAKE RD 1.455 AC NET | 1.567 AC GROSS
Square Feet
2104
Topo
LEVEL
Utility
GAS | WELL | SEPTIC
Zoning
Please contact your municipal zoning officer
Deed Book
2019
Deed Page
013456
2026 Tax Values
Land Value / Taxable
25,700 / 25,700.00
Building Value / Taxable
67,900 / 67,900.00
Total Value / Taxable
93,600 / 93,600.00
Clean & Green
Inactive
Homestead Status
Inactive
Farmstead Status
Inactive
Lerta Amount
0
Lerta Expiration Year
0
Residential Data
Card 1
Style
RANCH
Basement
FULL
Year Built
1929
Exterior Wall
FRAME
Total Living Area
2104
Full Baths
1
Half Baths
0
Fuel Type
GAS
Heating
CENTRAL
Heating System
FORCED AIR
Stories
1.0
Total Bedrooms
3
Total Family Rooms
0
Total Rooms
6
Fireplaces
1
Other Buildings & Yards
Description
Built
Width
Length
Area
FRAME UTILITY SHED
1966
20
28
560
1S LEAN TO
1966
8
24
192
Sales History
Sale Date
Type
Price
Book / Page
Other Info
7/12/2019
LAND & BUILDING
16000
2019 / 013456
SPECIAL WARRANTY DEED
9/8/2017
LAND & BUILDING
2512
2017 / 019499
SHERIFF'S DED
10/26/2000
LAND & BUILDING
63000
734 / 448
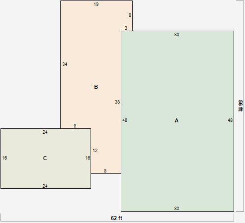
Parcel Sketches
Residential Card 1
A
MAIN
1440 square feet
B
1S FR ONE STORY FRAME
664 square feet
C
FR GR FRAME GARAGE
384 square feet
Parcel Images
Please note:
this tab is for informational purposes only and may not show all delinquencies, see the Taxes tab for more accurate delinquent taxes due.