Elected Officials
Courts
Departments
Initiatives
Open Government
About
Login / Register
Home
/
Property & Tax Records
/
Property Records
/
Property & Tax Search
/
Parcel Profile
/
Print View
Search for Another Parcel
Parcel Profile
Historical Card
Sketches
Photos
Tax Map
Taxes
Print View
Print This Page
Address: EAGLEY RD
Parcel: 39010024000100
Parcel Profile
Address
0 | EAGLEY | RD
Street Status
PAVED
School District
NORTHWESTERN SCHOOL
Acreage
57.7000
Classification
F
Land Use Code
20 - 79.99 ACRES
Legal Description
EAGLEY RD TR 591 & 592 | 57.7 AC
Square Feet
1364
Topo
ROLLING
Utility
WELL | SEPTIC
Zoning
Please contact your municipal zoning officer
Deed Book
0259
Deed Page
0335
2026 Tax Values
Land Value / Taxable
76,400 / 67,400.00
Building Value / Taxable
37,800 / 37,800.00
Total Value / Taxable
114,200 / 105,200.00
Clean & Green
Active
Homestead Status
Inactive
Farmstead Status
Inactive
Lerta Amount
0
Lerta Expiration Year
0
Residential Data
Card 1
Style
OLD STYLE
Basement
FULL
Year Built
1900
Exterior Wall
COMPOSITION
Total Living Area
1364
Full Baths
1
Half Baths
0
Fuel Type
NONE
Heating
CENTRAL
Heating System
NONE
Stories
2.0
Total Bedrooms
4
Total Family Rooms
0
Total Rooms
7
Fireplaces
0
Other Buildings & Yards
Description
Built
Width
Length
Area
FRAME UTILITY SHED
1900
8
10
80
FRAME UTILITY SHED
1900
10
14
140
Sales History
Sale Date
Type
Price
Book / Page
Other Info
3/17/1993
0
0259 / 0335
3/17/1993
LAND & BUILDING
0
0259 / 0335
QUIT CLAIM DEED
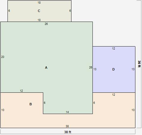
Parcel Sketches
Residential Card 1
A
MAIN
604 square feet
B
OFP OPEN FRAME PORCH
296 square feet
C
EFP ENCL FRAME PORCH
108 square feet
D
UNFIN BSMT BASEMENT UNFINISHED 1S FR ONE STORY FRAME
156 square feet
Parcel Images
Please note:
this tab is for informational purposes only and may not show all delinquencies, see the Taxes tab for more accurate delinquent taxes due.