Elected Officials
Courts
Departments
Initiatives
Open Government
About
Login / Register
Home
/
Property & Tax Records
/
Property Records
/
Property & Tax Search
/
Parcel Profile
/
Print View
Search for Another Parcel
Parcel Profile
Historical Card
Sketches
Photos
Tax Map
Taxes
Print View
Print This Page
Address: 14690 RIDGE RD
Parcel: 39012038000800
Parcel Profile
Address
14690 | RIDGE | RD
Street Status
PAVED
School District
NORTHWESTERN SCHOOL
Acreage
1.0000
Classification
R
Land Use Code
SINGLE FAMILY
Legal Description
14690 RIDGE RD LOT 1 1.0 AC
Square Feet
2000
Topo
LEVEL
Utility
GAS | WELL | SEPTIC
Zoning
Please contact your municipal zoning officer
Deed Book
1444
Deed Page
1529
2026 Tax Values
Land Value / Taxable
24,300 / 24,300.00
Building Value / Taxable
68,600 / 68,600.00
Total Value / Taxable
92,900 / 92,900.00
Clean & Green
Inactive
Homestead Status
Active
Farmstead Status
Inactive
Lerta Amount
0
Lerta Expiration Year
0
Residential Data
Card 1
Style
OLD STYLE
Basement
FULL
Year Built
1921
Exterior Wall
ALUMINUM/VINYL
Total Living Area
2000
Full Baths
2
Half Baths
0
Fuel Type
GAS
Heating
CENTRAL A/C
Heating System
FORCED AIR
Stories
2.0
Total Bedrooms
4
Total Family Rooms
0
Total Rooms
7
Fireplaces
0
Other Buildings & Yards
No OBY Data Found
Sales History
Sale Date
Type
Price
Book / Page
Other Info
9/4/2007
LAND & BUILDING
75000
1444 / 1529
DEED
8/29/1986
LAND & BUILDING
52500
1646 / 0183
8/29/1986
0
1646 / 0183
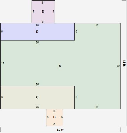
Parcel Sketches
Residential Card 1
A
MAIN
896 square feet
B
MA STOOP/TERR MAS STOOP
36 square feet
C
1S FR ONE STORY FRAME
208 square feet
D
EFP ENCL FRAME PORCH
156 square feet
E
WDDCK WOOD DECKS
64 square feet
Parcel Images
Please note:
this tab is for informational purposes only and may not show all delinquencies, see the Taxes tab for more accurate delinquent taxes due.