Address: 14504 RIDGE RD   Parcel: 39012038001800
Parcel Profile
Address14504 | RIDGE | RD
Street StatusPAVED
School DistrictNORTHWESTERN SCHOOL
Acreage2.8990
ClassificationR
Land Use CodeDWELLING W/ COMMERCIAL USE PRIMARY COMM
Legal Description14504 RIDGE RD LOT C 2.899 AC NET
Square Feet1456
TopoLEVEL
UtilityGAS | WELL | SEPTIC
ZoningPlease contact your municipal zoning officer
Deed Book0933
Deed Page0252
2025 Tax Values
Land Value / Taxable34,600 / 34,600.00
Building Value / Taxable61,100 / 61,100.00
Total Value / Taxable95,700 / 95,700.00
Clean & GreenInactive
Homestead StatusActive
Farmstead StatusInactive
Lerta Amount0
Lerta Expiration Year0
Residential Data
Card 1
     StyleOLD STYLE
     BasementFULL
     Year Built1928
     Exterior WallMASONRY & FRAME
     Total Living Area1456
     Full Baths1
     Half Baths0
     Fuel TypeGAS
     HeatingCENTRAL A/C
     Heating SystemFORCED AIR
     Stories1.0
     Total Bedrooms3
     Total Family Rooms0
     Total Rooms7
     Fireplaces0
Other Buildings & Yards
DescriptionBuiltWidthLengthArea
 FOUR SIDE CLOSED MTL POLE BLDG 1976 94 0 5174
 FRAME UTILITY SHED 2007 10 12 120
Sales History
Sale DateTypePriceBook / PageOther Info
10/16/2002LAND & BUILDING00933 / 0252AFFIDAVIT



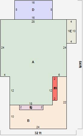
Parcel Sketches

Residential Card 1

Residential Card 1
AMAIN888 square feet
B OFP OPEN FRAME PORCH 312 square feet
C 1S FR ONE STORY FRAME 40 square feet
D EFP ENCL FRAME PORCH 128 square feet
E FRBAY FRAME BAY 20 square feet
F FRBAY FRAME BAY 20 square feet

Parcel Images

parcel photoparcel photoparcel photoparcel photo