Elected Officials
Courts
Departments
Initiatives
Open Government
About
Login / Register
Home
/
Property & Tax Records
/
Property Records
/
Property & Tax Search
/
Parcel Profile
/
Print View
Search for Another Parcel
Parcel Profile
Historical Card
Sketches
Photos
Tax Map
Taxes
Print View
Print This Page
Address: 14430 RIDGE RD
Parcel: 39012038003100
Parcel Profile
Address
14430 | RIDGE | RD
Street Status
PAVED
School District
NORTHWESTERN SCHOOL
Acreage
1.9429
Classification
R
Land Use Code
SINGLE FAMILY
Legal Description
14430 RIDGE RD 1.9429 AC NET | 2.1472 AC GROSS
Square Feet
1248
Topo
LEVEL
Utility
GAS | WELL | SEPTIC
Zoning
Please contact your municipal zoning officer
Deed Book
0398
Deed Page
2130
2026 Tax Values
Land Value / Taxable
27,100 / 27,100.00
Building Value / Taxable
60,000 / 60,000.00
Total Value / Taxable
87,100 / 87,100.00
Clean & Green
Inactive
Homestead Status
Active
Farmstead Status
Inactive
Lerta Amount
0
Lerta Expiration Year
0
Residential Data
Card 1
Style
BUNGALOW
Basement
FULL
Year Built
1922
Exterior Wall
FRAME
Total Living Area
1248
Full Baths
1
Half Baths
0
Fuel Type
GAS
Heating
CENTRAL
Heating System
FORCED AIR
Stories
1.0
Total Bedrooms
4
Total Family Rooms
1
Total Rooms
8
Fireplaces
0
Other Buildings & Yards
Description
Built
Width
Length
Area
FOUR SIDE CLOSED MTL POLE BLDG
2015
19
24
456
CARPORT
2015
17
24
408
FRAME OR CB DETACHED GARAGE
2017
10
24
240
Sales History
Sale Date
Type
Price
Book / Page
Other Info
8/18/1995
LAND & BUILDING
0
0398 / 2130
AFFIDAVIT
8/18/1995
0
0398 / 2130
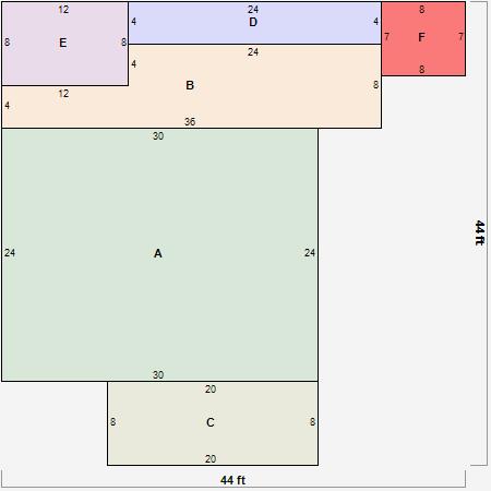
Parcel Sketches
Residential Card 1
A
MAIN
720 square feet
B
1S FR ONE STORY FRAME
240 square feet
C
OFP OPEN FRAME PORCH
160 square feet
D
EFP ENCL FRAME PORCH
96 square feet
E
OFP OPEN FRAME PORCH
96 square feet
F
WDDCK WOOD DECKS
56 square feet
Parcel Images
Please note:
this tab is for informational purposes only and may not show all delinquencies, see the Taxes tab for more accurate delinquent taxes due.