Elected Officials
Courts
Departments
Initiatives
Open Government
About
Login / Register
Home
/
Property & Tax Records
/
Property Records
/
Property & Tax Search
/
Parcel Profile
/
Print View
Search for Another Parcel
Parcel Profile
Historical Card
Sketches
Photos
Tax Map
Taxes
Print View
Print This Page
Address: 14687 RIDGE RD
Parcel: 39013039001200
Parcel Profile
Address
14687 | RIDGE | RD
Street Status
PAVED
School District
NORTHWESTERN SCHOOL
Acreage
5.0000
Classification
R
Land Use Code
SINGLE FAMILY
Legal Description
14687 RIDGE RD 5 AC
Square Feet
944
Topo
LEVEL
Utility
GAS | WELL | SEPTIC
Zoning
Please contact your municipal zoning officer
Deed Book
2022
Deed Page
008455
2025 Tax Values
Land Value / Taxable
27,200 / 27,200.00
Building Value / Taxable
47,800 / 47,800.00
Total Value / Taxable
75,000 / 75,000.00
Clean & Green
Inactive
Homestead Status
Active
Farmstead Status
Inactive
Lerta Amount
0
Lerta Expiration Year
0
Residential Data
Card 1
Style
BUNGALOW
Basement
PART
Year Built
1930
Exterior Wall
ALUMINUM/VINYL
Total Living Area
944
Full Baths
1
Half Baths
0
Fuel Type
GAS
Heating
CENTRAL A/C
Heating System
FORCED AIR
Stories
1.0
Total Bedrooms
2
Total Family Rooms
0
Total Rooms
5
Fireplaces
0
Other Buildings & Yards
Description
Built
Width
Length
Area
FLAT BARN
1930
16
18
288
FOUR SIDE CLOSED MTL POLE BLDG
1979
28
36
1008
ONE SIDE OPEN WD POLE BLDG
2003
16
28
448
CANOPY
2009
15
28
420
Sales History
Sale Date
Type
Price
Book / Page
Other Info
4/20/2022
LAND & BUILDING
0
2022 / 008455
QUIT CLAIM DEED
7/26/1978
LAND & BUILDING
39750
1314 / 0177
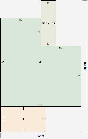
Parcel Sketches
Residential Card 1
A
MAIN
944 square feet
B
EFP ENCL FRAME PORCH
180 square feet
C
EFP ENCL FRAME PORCH
108 square feet
Parcel Images