Elected Officials
Courts
Departments
Initiatives
Open Government
About
Login / Register
Home
/
Property & Tax Records
/
Property Records
/
Property & Tax Search
/
Parcel Profile
/
Print View
Search for Another Parcel
Parcel Profile
Historical Card
Sketches
Photos
Tax Map
Taxes
Print View
Print This Page
Address: 14403 W RIDGE RD
Parcel: 39013040000200
Parcel Profile
Address
14403 | W | RIDGE | RD
Street Status
PAVED
School District
NORTHWESTERN SCHOOL
Acreage
41.4500
Classification
F
Land Use Code
20 - 79.99 ACRES
Legal Description
14403 W RIDGE RD 41.45 AC CAL
Square Feet
1818
Topo
LEVEL
Utility
GAS | WELL | SEPTIC
Zoning
Please contact your municipal zoning officer
Deed Book
2019
Deed Page
000865
2026 Tax Values
Land Value / Taxable
52,800 / 52,800.00
Building Value / Taxable
95,800 / 95,800.00
Total Value / Taxable
148,600 / 148,600.00
Clean & Green
Inactive
Homestead Status
Active
Farmstead Status
Inactive
Lerta Amount
0
Lerta Expiration Year
0
Residential Data
Card 1
Style
OLD STYLE
Basement
PART
Year Built
1823
Exterior Wall
FRAME
Total Living Area
1818
Full Baths
1
Half Baths
1
Fuel Type
GAS
Heating
CENTRAL
Heating System
HOT WATER
Stories
2.0
Total Bedrooms
3
Total Family Rooms
1
Total Rooms
13
Fireplaces
0
Other Buildings & Yards
Description
Built
Width
Length
Area
FRAME UTILITY SHED
1996
10
14
140
FRAME UTILITY SHED
1996
10
14
140
FOUR SIDE CLOSED WD POLE BLDG
1996
24
60
1440
CANOPY
1996
6
10
60
Sales History
Sale Date
Type
Price
Book / Page
Other Info
1/15/2019
LAND & BUILDING
0
2019 / 000865
QUIT/CLAIM SURVIVORSHIP
9/4/2002
LAND & BUILDING
9600
0917 / 0155
WARRANTY/SURVIVORSHIP DEED
6/20/1972
0
1071 / 0201
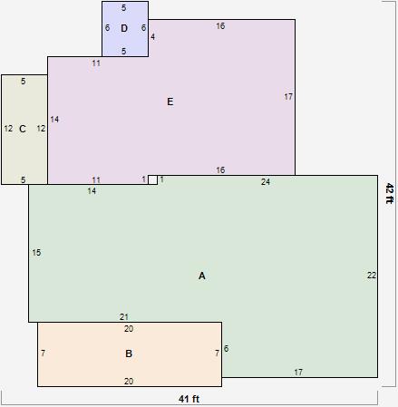
Parcel Sketches
Residential Card 1
A
MAIN
696 square feet
B
OFP OPEN FRAME PORCH
140 square feet
C
OFP OPEN FRAME PORCH
60 square feet
D
MA STOOP/TERR MAS STOOP
30 square feet
E
1S FR ONE STORY FRAME
426 square feet
Parcel Images
Please note:
this tab is for informational purposes only and may not show all delinquencies, see the Taxes tab for more accurate delinquent taxes due.