Elected Officials
Courts
Departments
Initiatives
Open Government
About
Login / Register
Home
/
Property & Tax Records
/
Property Records
/
Property & Tax Search
/
Parcel Profile
/
Print View
Search for Another Parcel
Parcel Profile
Historical Card
Sketches
Photos
Tax Map
Taxes
Print View
Print This Page
Address: 4743 CRAYTON RD
Parcel: 39014035004700
Parcel Profile
Address
4743 | CRAYTON | RD
Street Status
PAVED
School District
NORTHWESTERN SCHOOL
Acreage
1.3500
Classification
R
Land Use Code
SINGLE FAMILY
Legal Description
4743 CRAYTON RD 1.35 AC CAL
Square Feet
1496
Topo
LEVEL
Utility
WELL | SEPTIC
Zoning
Please contact your municipal zoning officer
Deed Book
0503
Deed Page
0653
2026 Tax Values
Land Value / Taxable
25,200 / 25,200.00
Building Value / Taxable
96,400 / 96,400.00
Total Value / Taxable
121,600 / 121,600.00
Clean & Green
Inactive
Homestead Status
Active
Farmstead Status
Inactive
Lerta Amount
0
Lerta Expiration Year
0
Residential Data
Card 1
Style
CONVENTIONAL
Basement
FULL
Year Built
1928
Exterior Wall
ALUMINUM/VINYL
Total Living Area
1496
Full Baths
1
Half Baths
0
Fuel Type
GAS
Heating
CENTRAL
Heating System
FORCED AIR
Stories
2.0
Total Bedrooms
2
Total Family Rooms
0
Total Rooms
4
Fireplaces
0
Other Buildings & Yards
Description
Built
Width
Length
Area
FOUR SIDE CLOSED WD POLE BLDG
2014
40
60
2400
FRAME OR METAL SHED
2025
0
0
140
FRAME OR METAL SHED
2025
0
0
72
Sales History
Sale Date
Type
Price
Book / Page
Other Info
6/16/1997
LAND & BUILDING
59900
0503 / 0653
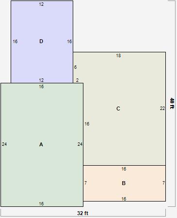
Parcel Sketches
Residential Card 1
A
MAIN
384 square feet
B
EFP ENCL FRAME PORCH
112 square feet
C
UNFIN BSMT BASEMENT UNFINISHED 1S FR ONE STORY FRAME 1S FR ONE STORY FRAME
364 square feet
D
WDDCK WOOD DECKS
192 square feet
Parcel Images
Please note:
this tab is for informational purposes only and may not show all delinquencies, see the Taxes tab for more accurate delinquent taxes due.