Elected Officials
Courts
Departments
Initiatives
Open Government
About
Login / Register
Home
/
Property & Tax Records
/
Property Records
/
Property & Tax Search
/
Parcel Profile
/
Print View
Search for Another Parcel
Parcel Profile
Historical Card
Sketches
Photos
Tax Map
Taxes
Print View
Print This Page
Address: 13755 RIDGE RD
Parcel: 39015044000400
Parcel Profile
Address
13755 | RIDGE | RD
Street Status
PAVED
School District
NORTHWESTERN SCHOOL
Acreage
1.1817
Classification
R
Land Use Code
SINGLE FAMILY
Legal Description
13755 RIDGE RD 146.80 X 290.51 IRR
Square Feet
2452
Topo
BELOW STREET
Utility
WELL | SEPTIC
Zoning
Please contact your municipal zoning officer
Deed Book
2017
Deed Page
020030
2026 Tax Values
Land Value / Taxable
24,700 / 24,700.00
Building Value / Taxable
100,500 / 100,500.00
Total Value / Taxable
125,200 / 125,200.00
Clean & Green
Inactive
Homestead Status
Active
Farmstead Status
Inactive
Lerta Amount
0
Lerta Expiration Year
0
Residential Data
Card 1
Style
OLD STYLE
Basement
FULL
Year Built
1919
Exterior Wall
FRAME
Total Living Area
2452
Full Baths
1
Half Baths
1
Fuel Type
OIL
Heating
CENTRAL
Heating System
HOT WATER
Stories
2.0
Total Bedrooms
4
Total Family Rooms
0
Total Rooms
8
Fireplaces
0
Other Buildings & Yards
No OBY Data Found
Sales History
Sale Date
Type
Price
Book / Page
Other Info
9/14/2017
LAND & BUILDING
78000
2017 / 020030
SPECIAL WARRANTY DEED
11/21/2001
0
0827 / 2346
5/25/1999
LAND & BUILDING
83000
638 / 677
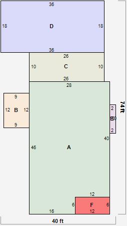
Parcel Sketches
Residential Card 1
A
MAIN
1216 square feet
B
OFP OPEN FRAME PORCH
108 square feet
C
EFP ENCL FRAME PORCH EFP ENCL FRAME PORCH
260 square feet
D
FR GR FRAME GARAGE
648 square feet
E
FRBAY FRAME BAY
20 square feet
F
EFP ENCL FRAME PORCH
72 square feet
Parcel Images
Please note:
this tab is for informational purposes only and may not show all delinquencies, see the Taxes tab for more accurate delinquent taxes due.