Elected Officials
Courts
Departments
Initiatives
Open Government
About
Login / Register
Home
/
Property & Tax Records
/
Property Records
/
Property & Tax Search
/
Parcel Profile
/
Print View
Search for Another Parcel
Parcel Profile
Historical Card
Sketches
Photos
Tax Map
Taxes
Print View
Print This Page
Address: 13737 RIDGE RD
Parcel: 39015044000500
Parcel Profile
Address
13737 | RIDGE | RD
Street Status
PAVED
School District
NORTHWESTERN SCHOOL
Acreage
0.2364
Classification
R
Land Use Code
SINGLE FAMILY
Legal Description
13737 RIDGE RD 66 X 156.5
Square Feet
1832
Topo
LEVEL
Utility
WELL | SEPTIC | GAS
Zoning
Please contact your municipal zoning officer
Deed Book
2023
Deed Page
020694
2026 Tax Values
Land Value / Taxable
14,500 / 14,500.00
Building Value / Taxable
18,400 / 18,400.00
Total Value / Taxable
32,900 / 32,900.00
Clean & Green
Inactive
Homestead Status
Inactive
Farmstead Status
Inactive
Lerta Amount
0
Lerta Expiration Year
0
Residential Data
Card 1
Style
OLD STYLE
Basement
PART
Year Built
1900
Exterior Wall
ALUMINUM/VINYL
Total Living Area
1832
Full Baths
1
Half Baths
0
Fuel Type
GAS
Heating
CENTRAL
Heating System
FORCED AIR
Stories
2.0
Total Bedrooms
4
Total Family Rooms
0
Total Rooms
8
Fireplaces
0
Other Buildings & Yards
Description
Built
Width
Length
Area
FRAME OR CB DETACHED GARAGE
1960
18
26
468
Sales History
Sale Date
Type
Price
Book / Page
Other Info
11/29/2023
LAND & BUILDING
22000
2023 / 020694
SPECIAL WARRANTY DEED
12/14/2015
LAND & BUILDING
0
2015 / 027280
QUIT CLAIM DEED
9/25/2009
LAND & BUILDING
25000
1593 / 0613
WARRANTY/SURVIVORSHIP DEED
7/10/2009
LAND & BUILDING
0
1575 / 2393
SHERIFF'S DED
3/8/2004
LAND & BUILDING
30000
1113 / 1354
WARRANTY/SURVIVORSHIP DEED
3/8/2004
LAND & BUILDING
23000
1113 / 1350
DEED
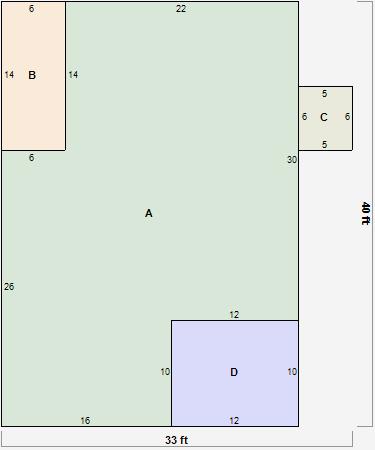
Parcel Sketches
Residential Card 1
A
MAIN
916 square feet
B
EFP ENCL FRAME PORCH
84 square feet
C
OFP OPEN FRAME PORCH
30 square feet
D
OFP OPEN FRAME PORCH
120 square feet
Parcel Images
Please note:
this tab is for informational purposes only and may not show all delinquencies, see the Taxes tab for more accurate delinquent taxes due.