Elected Officials
Courts
Departments
Initiatives
Open Government
About
Login / Register
Home
/
Property & Tax Records
/
Property Records
/
Property & Tax Search
/
Parcel Profile
/
Print View
Search for Another Parcel
Parcel Profile
Historical Card
Sketches
Photos
Tax Map
Taxes
Print View
Print This Page
Address: 13770 CHESTNUT ST
Parcel: 39015044003400
Parcel Profile
Address
13770 | CHESTNUT | ST
Street Status
PAVED
School District
NORTHWESTERN SCHOOL
Acreage
0.2104
Classification
R
Land Use Code
SINGLE FAMILY
Legal Description
13770 CHESTNUT ST 52 X 176.25
Square Feet
1352
Topo
LEVEL
Utility
WELL | SEPTIC | GAS
Zoning
Please contact your municipal zoning officer
Deed Book
2022
Deed Page
003278
2026 Tax Values
Land Value / Taxable
18,900 / 18,900.00
Building Value / Taxable
66,990 / 66,990.00
Total Value / Taxable
85,890 / 85,890.00
Clean & Green
Inactive
Homestead Status
Active
Farmstead Status
Inactive
Lerta Amount
0
Lerta Expiration Year
0
Residential Data
Card 1
Style
OLD STYLE
Basement
FULL
Year Built
1900
Exterior Wall
ALUMINUM/VINYL
Total Living Area
1352
Full Baths
1
Half Baths
1
Fuel Type
GAS
Heating
CENTRAL
Heating System
FORCED AIR
Stories
2.0
Total Bedrooms
3
Total Family Rooms
0
Total Rooms
6
Fireplaces
0
Other Buildings & Yards
No OBY Data Found
Sales History
Sale Date
Type
Price
Book / Page
Other Info
2/14/2022
LAND & BUILDING
0
2022 / 003278
QUIT CLAIM DEED
3/29/2019
LAND & BUILDING
79900
2019 / 005408
SPECIAL WARRANTY DEED
8/10/2010
LAND & BUILDING
0
2010 / 019374
QUIT CLAIM DEED
6/27/1978
0
1310 / 0385
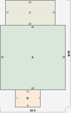
Parcel Sketches
Residential Card 1
A
MAIN
676 square feet
B
EFP ENCL FRAME PORCH
70 square feet
C
OFP OPEN FRAME PORCH
200 square feet
Parcel Images
Please note:
this tab is for informational purposes only and may not show all delinquencies, see the Taxes tab for more accurate delinquent taxes due.