Elected Officials
Courts
Departments
Initiatives
Open Government
About
Login / Register
Home
/
Property & Tax Records
/
Property Records
/
Property & Tax Search
/
Parcel Profile
/
Print View
Search for Another Parcel
Parcel Profile
Historical Card
Sketches
Photos
Tax Map
Taxes
Print View
Print This Page
Address: 13500 RIDGE RD
Parcel: 39016035002500
Parcel Profile
Address
13500 | RIDGE | RD
Street Status
PAVED
School District
NORTHWESTERN SCHOOL
Acreage
5.1580
Classification
R
Land Use Code
SINGLE FAMILY
Legal Description
13500 RIDGE RD 5.158 AC
Square Feet
1763
Topo
LEVEL
Utility
WELL | WELL | SEPTIC
Zoning
Please contact your municipal zoning officer
Deed Book
0522
Deed Page
2118
2026 Tax Values
Land Value / Taxable
34,400 / 34,400.00
Building Value / Taxable
83,200 / 83,200.00
Total Value / Taxable
117,600 / 117,600.00
Clean & Green
Inactive
Homestead Status
Active
Farmstead Status
Inactive
Lerta Amount
0
Lerta Expiration Year
0
Residential Data
Card 1
Style
CONVENTIONAL
Basement
PART
Year Built
1920
Exterior Wall
FRAME
Total Living Area
1763
Full Baths
2
Half Baths
0
Fuel Type
GAS
Heating
CENTRAL
Heating System
HOT WATER
Stories
2.0
Total Bedrooms
3
Total Family Rooms
1
Total Rooms
6
Fireplaces
0
Other Buildings & Yards
Description
Built
Width
Length
Area
FRAME OR CB DETACHED GARAGE
1977
30
50
1500
METAL SHED
1990
6
8
48
Sales History
Sale Date
Type
Price
Book / Page
Other Info
10/7/1997
0
0522 / 2118
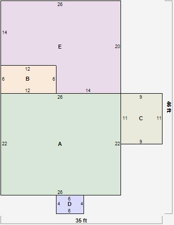
Parcel Sketches
Residential Card 1
A
MAIN
572 square feet
B
1S FR ONE STORY FRAME
72 square feet
C
1S FR ONE STORY FRAME
99 square feet
D
OFP OPEN FRAME PORCH
24 square feet
E
1S FR ONE STORY FRAME
448 square feet
Parcel Images
Please note:
this tab is for informational purposes only and may not show all delinquencies, see the Taxes tab for more accurate delinquent taxes due.