Elected Officials
Courts
Departments
Initiatives
Open Government
About
Login / Register
Home
/
Property & Tax Records
/
Property Records
/
Property & Tax Search
/
Parcel Profile
/
Print View
Search for Another Parcel
Parcel Profile
Historical Card
Sketches
Photos
Tax Map
Taxes
Print View
Print This Page
Address: 13532 RIDGE RD
Parcel: 39016035002602
Parcel Profile
Address
13532 | RIDGE | RD
Street Status
PAVED
School District
NORTHWESTERN SCHOOL
Acreage
1.8100
Classification
R
Land Use Code
SINGLE FAMILY
Legal Description
13532 RIDGE RD 1.81 AC
Square Feet
2524
Topo
LEVEL
Utility
GAS | WELL | SEPTIC
Zoning
Please contact your municipal zoning officer
Deed Book
0155
Deed Page
0692
2026 Tax Values
Land Value / Taxable
26,300 / 26,300.00
Building Value / Taxable
92,020 / 92,020.00
Total Value / Taxable
118,320 / 118,320.00
Clean & Green
Inactive
Homestead Status
Active
Farmstead Status
Inactive
Lerta Amount
0
Lerta Expiration Year
0
Residential Data
Card 1
Style
OLD STYLE
Basement
PART
Year Built
1900
Exterior Wall
MASONRY & FRAME
Total Living Area
2524
Full Baths
1
Half Baths
0
Fuel Type
GAS
Heating
CENTRAL
Heating System
HOT WATER
Stories
2.0
Total Bedrooms
3
Total Family Rooms
0
Total Rooms
7
Fireplaces
0
Other Buildings & Yards
Description
Built
Width
Length
Area
FRAME OR CB DETACHED GARAGE
1987
24
36
864
FOUR SIDE CLOSED WD POLE BLDG
2012
24
24
576
CANOPY
2012
8
24
192
Sales History
Sale Date
Type
Price
Book / Page
Other Info
4/8/1991
0
0155 / 0692
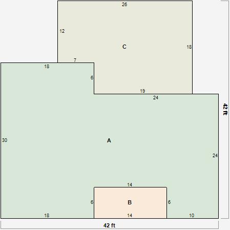
Parcel Sketches
Residential Card 1
A
MAIN
1032 square feet
B
EFP ENCL FRAME PORCH AT FN ATTIC-FINISHED
84 square feet
C
1S FR ONE STORY FRAME
426 square feet
Parcel Images
Please note:
this tab is for informational purposes only and may not show all delinquencies, see the Taxes tab for more accurate delinquent taxes due.