Elected Officials
Courts
Departments
Initiatives
Open Government
About
Login / Register
Home
/
Property & Tax Records
/
Property Records
/
Property & Tax Search
/
Parcel Profile
/
Print View
Search for Another Parcel
Parcel Profile
Historical Card
Sketches
Photos
Tax Map
Taxes
Print View
Print This Page
Address: 13062 RIDGE RD
Parcel: 39016051000900
Parcel Profile
Address
13062 | RIDGE | RD
Street Status
PAVED
School District
NORTHWESTERN SCHOOL
Acreage
8.5100
Classification
R
Land Use Code
SINGLE FAMILY
Legal Description
13062 RIDGE RD 8.51 AC
Square Feet
1687
Topo
LEVEL
Utility
GAS | WELL | SEPTIC
Zoning
Please contact your municipal zoning officer
Deed Book
2020
Deed Page
004022
2026 Tax Values
Land Value / Taxable
42,500 / 42,500.00
Building Value / Taxable
53,690 / 53,690.00
Total Value / Taxable
96,190 / 96,190.00
Clean & Green
Inactive
Homestead Status
Active
Farmstead Status
Inactive
Lerta Amount
0
Lerta Expiration Year
0
Residential Data
Card 1
Style
OLD STYLE
Basement
PART
Year Built
1900
Exterior Wall
ALUMINUM/VINYL
Total Living Area
1687
Full Baths
1
Half Baths
0
Fuel Type
GAS
Heating
CENTRAL
Heating System
FORCED AIR
Stories
2.0
Total Bedrooms
4
Total Family Rooms
0
Total Rooms
7
Fireplaces
0
Other Buildings & Yards
Description
Built
Width
Length
Area
FLAT BARN
1980
25
30
750
Sales History
Sale Date
Type
Price
Book / Page
Other Info
3/2/2020
LAND & BUILDING
0
2020 / 004022
QUIT CLAIM DEED
7/22/1994
0
0346 / 0347
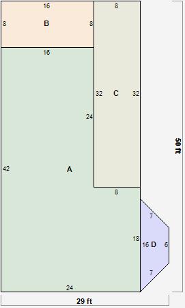
Parcel Sketches
Residential Card 1
A
MAIN
816 square feet
B
EFP ENCL FRAME PORCH
128 square feet
C
OFP OPEN FRAME PORCH
256 square feet
D
FRBAY FRAME BAY
55 square feet
Parcel Images