Elected Officials
Courts
Departments
Initiatives
Open Government
About
Login / Register
Home
/
Property & Tax Records
/
Property Records
/
Property & Tax Search
/
Parcel Profile
/
Print View
Search for Another Parcel
Parcel Profile
Historical Card
Sketches
Photos
Tax Map
Taxes
Print View
Print This Page
Address: 13104 RIDGE RD
Parcel: 39016051001000
Parcel Profile
Address
13104 | RIDGE | RD
Street Status
PAVED
School District
NORTHWESTERN SCHOOL
Acreage
7.0000
Classification
R
Land Use Code
SINGLE FAMILY
Legal Description
13104 RIDGE RD 7 AC
Square Feet
1384
Topo
LEVEL
Utility
GAS | WELL | SEPTIC
Zoning
Please contact your municipal zoning officer
Deed Book
0648
Deed Page
1263
2025 Tax Values
Land Value / Taxable
38,900 / 38,900.00
Building Value / Taxable
70,870 / 70,870.00
Total Value / Taxable
109,770 / 109,770.00
Clean & Green
Inactive
Homestead Status
Active
Farmstead Status
Inactive
Lerta Amount
0
Lerta Expiration Year
0
Residential Data
Card 1
Style
BUNGALOW
Basement
PART
Year Built
1924
Exterior Wall
ALUMINUM/VINYL
Total Living Area
1384
Full Baths
1
Half Baths
0
Fuel Type
GAS
Heating
CENTRAL
Heating System
FORCED AIR
Stories
1.0
Total Bedrooms
3
Total Family Rooms
0
Total Rooms
6
Fireplaces
0
Other Buildings & Yards
Description
Built
Width
Length
Area
FRAME OR CB DETACHED GARAGE
1964
24
24
576
FRAME UTILITY SHED
1950
16
36
576
Sales History
Sale Date
Type
Price
Book / Page
Other Info
7/9/1999
LAND & BUILDING
86000
0648 / 1263
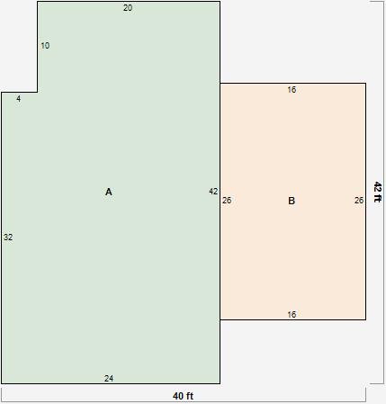
Parcel Sketches
Residential Card 1
A
MAIN
968 square feet
B
1S FR ONE STORY FRAME
416 square feet
Parcel Images