Elected Officials
Courts
Departments
Initiatives
Open Government
About
Login / Register
Home
/
Property & Tax Records
/
Property Records
/
Property & Tax Search
/
Parcel Profile
/
Print View
Search for Another Parcel
Parcel Profile
Historical Card
Sketches
Photos
Tax Map
Taxes
Print View
Print This Page
Address: 12683 RIDGE RD
Parcel: 39018055001000
Parcel Profile
Address
12683 | RIDGE | RD
Street Status
PAVED
School District
NORTHWESTERN SCHOOL
Acreage
10.0000
Classification
F
Land Use Code
10-19.99 ACRES
Legal Description
12683 RIDGE RD 10 AC
Square Feet
1562
Topo
LEVEL
Utility
GAS | WELL | SEPTIC
Zoning
Please contact your municipal zoning officer
Deed Book
0107
Deed Page
0956
2026 Tax Values
Land Value / Taxable
35,500 / 30,300.00
Building Value / Taxable
83,800 / 83,800.00
Total Value / Taxable
119,300 / 114,100.00
Clean & Green
Active
Homestead Status
Active
Farmstead Status
Inactive
Lerta Amount
0
Lerta Expiration Year
0
Residential Data
Card 1
Style
CONVENTIONAL
Basement
FULL
Year Built
1925
Exterior Wall
ALUMINUM/VINYL
Total Living Area
1562
Full Baths
1
Half Baths
0
Fuel Type
GAS
Heating
CENTRAL
Heating System
FORCED AIR
Stories
1.0
Total Bedrooms
2
Total Family Rooms
1
Total Rooms
5
Fireplaces
1
Other Buildings & Yards
Description
Built
Width
Length
Area
FRAME OR CB DETACHED GARAGE
1959
24
24
576
FOUR SIDE CLOSED WD POLE BLDG
2002
25
30
750
FOUR SIDE CLOSED WD POLE BLDG
2004
30
60
1800
Sales History
Sale Date
Type
Price
Book / Page
Other Info
1/26/1989
0
0107 / 0956
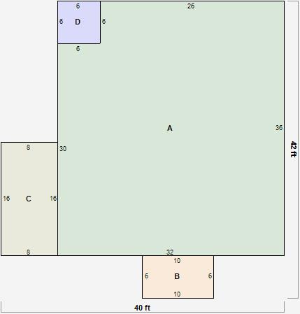
Parcel Sketches
Residential Card 1
A
MAIN
1116 square feet
B
OFP OPEN FRAME PORCH
60 square feet
C
OFP OPEN FRAME PORCH
128 square feet
D
OFP OPEN FRAME PORCH
36 square feet
Parcel Images
Please note:
this tab is for informational purposes only and may not show all delinquencies, see the Taxes tab for more accurate delinquent taxes due.