Elected Officials
Courts
Departments
Initiatives
Open Government
About
Login / Register
Home
/
Property & Tax Records
/
Property Records
/
Property & Tax Search
/
Parcel Profile
/
Print View
Search for Another Parcel
Parcel Profile
Historical Card
Sketches
Photos
Tax Map
Taxes
Print View
Print This Page
Address: 5476 MCKEE RD
Parcel: 39018056000200
Parcel Profile
Address
5476 | MCKEE | RD
Street Status
PAVED
School District
NORTHWESTERN SCHOOL
Acreage
21.9200
Classification
F
Land Use Code
20 - 79.99 ACRES
Legal Description
5476 MCKEE RD 21.92 AC
Square Feet
3785
Topo
LEVEL
Utility
WELL | SEPTIC
Zoning
Please contact your municipal zoning officer
Deed Book
2021
Deed Page
003105
2026 Tax Values
Land Value / Taxable
58,100 / 16,100.00
Building Value / Taxable
151,930 / 151,930.00
Total Value / Taxable
210,030 / 168,030.00
Clean & Green
Active
Homestead Status
Active
Farmstead Status
Inactive
Lerta Amount
0
Lerta Expiration Year
0
Residential Data
Card 1
Style
OLD STYLE
Basement
FULL
Year Built
1850
Exterior Wall
ALUMINUM/VINYL
Total Living Area
1953
Full Baths
2
Half Baths
0
Fuel Type
OIL
Heating
CENTRAL
Heating System
ELECTRIC
Stories
1.5
Total Bedrooms
3
Total Family Rooms
1
Total Rooms
5
Fireplaces
0
Card 2
Style
OLD STYLE
Basement
NONE
Year Built
1961
Exterior Wall
ALUMINUM/VINYL
Total Living Area
1832
Full Baths
1
Half Baths
0
Fuel Type
PROPANE
Heating
CENTRAL
Heating System
NONE
Stories
1.5
Total Bedrooms
2
Total Family Rooms
0
Total Rooms
3
Fireplaces
0
Other Buildings & Yards
Description
Built
Width
Length
Area
FRAME UTILITY SHED
1910
20
60
1200
FOUR SIDE CLOSED MTL POLE BLDG
1988
35
80
2800
Sales History
Sale Date
Type
Price
Book / Page
Other Info
2/9/2021
LAND & BUILDING
0
2021 / 003105
QUIT CLAIM DEED
3/9/2020
LAND & BUILDING
0
2020 / 004612
DEED
2/5/2015
LAND & BUILDING
0
2015 / 002177
QUIT CLAIM DEED
1/1/1969
0
0798 / 0062
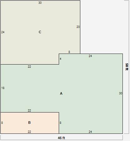
Parcel Sketches
Residential Card 1
A
MAIN
1116 square feet
B
MA_PT CONC/MAS PATIO
176 square feet
C
FR GR FRAME GARAGE
688 square feet
Residential Card 2
A
MAIN
1047 square feet
Parcel Images
Please note:
this tab is for informational purposes only and may not show all delinquencies, see the Taxes tab for more accurate delinquent taxes due.