Elected Officials
Courts
Departments
Initiatives
Open Government
About
Login / Register
Home
/
Property & Tax Records
/
Property Records
/
Property & Tax Search
/
Parcel Profile
/
Print View
Search for Another Parcel
Parcel Profile
Historical Card
Sketches
Photos
Tax Map
Taxes
Print View
Print This Page
Address: 13222 OLD ALBION RD
Parcel: 39022085000200
Parcel Profile
Address
13222 | OLD ALBION | RD
Street Status
PAVED
School District
NORTHWESTERN SCHOOL
Acreage
5.3900
Classification
R
Land Use Code
SINGLE FAMILY
Legal Description
13222 OLD ALBION RD 5.392 AC
Square Feet
1520
Topo
ABOVE STREET | STEEP
Utility
WELL | SEPTIC
Zoning
Please contact your municipal zoning officer
Deed Book
2016
Deed Page
008139
2026 Tax Values
Land Value / Taxable
35,000 / 35,000.00
Building Value / Taxable
108,900 / 108,900.00
Total Value / Taxable
143,900 / 143,900.00
Clean & Green
Inactive
Homestead Status
Active
Farmstead Status
Inactive
Lerta Amount
0
Lerta Expiration Year
0
Residential Data
Card 1
Style
OLD STYLE
Basement
FULL
Year Built
1850
Exterior Wall
ALUMINUM/VINYL
Total Living Area
1520
Full Baths
2
Half Baths
0
Fuel Type
OIL
Heating
CENTRAL
Heating System
FORCED AIR
Stories
2.0
Total Bedrooms
3
Total Family Rooms
0
Total Rooms
7
Fireplaces
1
Other Buildings & Yards
Description
Built
Width
Length
Area
FOUR SIDE CLOSED MTL POLE BLDG
2017
30
48
1440
CANOPY
2017
12
48
576
CANOPY
2017
12
48
576
Sales History
Sale Date
Type
Price
Book / Page
Other Info
4/27/2016
LAND & BUILDING
107000
2016 / 008139
SPECIAL WARRANTY DEED
3/26/2007
LAND & BUILDING
42500
1403 / 1382
DEED
2/15/2007
LAND & BUILDING
0
1395 / 0919
SHERIFF'S DED
7/18/2002
LAND & BUILDING
0
901 / 1544
AFFIDAVIT
7/12/1989
0
0092 / 0444
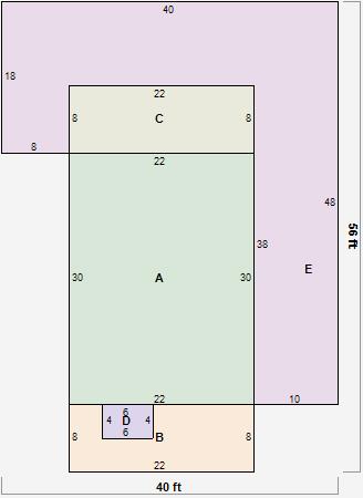
Parcel Sketches
Residential Card 1
A
MAIN
660 square feet
B
OFP OPEN FRAME PORCH
176 square feet
C
1S FR ONE STORY FRAME
176 square feet
D
FRBAY FRAME BAY
24 square feet
E
OFP OPEN FRAME PORCH OFP OPEN FRAME PORCH
844 square feet
Parcel Images
Please note:
this tab is for informational purposes only and may not show all delinquencies, see the Taxes tab for more accurate delinquent taxes due.