Elected Officials
Courts
Departments
Initiatives
Open Government
About
Login / Register
Home
/
Property & Tax Records
/
Property Records
/
Property & Tax Search
/
Parcel Profile
/
Print View
Search for Another Parcel
Parcel Profile
Historical Card
Sketches
Photos
Tax Map
Taxes
Print View
Print This Page
Address: 13300 SANFORD RD
Parcel: 39024048000200
Parcel Profile
Address
13300 | SANFORD | RD
Street Status
PAVED
School District
NORTHWESTERN SCHOOL
Acreage
49.5000
Classification
F
Land Use Code
20 - 79.99 ACRES
Legal Description
13300 SANFORD RD 49.50 AC NET
Square Feet
1269
Topo
LEVEL
Utility
WELL | SEPTIC
Zoning
Please contact your municipal zoning officer
Deed Book
2017
Deed Page
025435
2026 Tax Values
Land Value / Taxable
97,700 / 97,700.00
Building Value / Taxable
61,400 / 61,400.00
Total Value / Taxable
159,100 / 159,100.00
Clean & Green
Inactive
Homestead Status
Active
Farmstead Status
Inactive
Lerta Amount
0
Lerta Expiration Year
0
Residential Data
Card 1
Style
OLD STYLE
Basement
FULL
Year Built
1920
Exterior Wall
STUCCO
Total Living Area
1269
Full Baths
2
Half Baths
0
Fuel Type
OIL
Heating
CENTRAL
Heating System
FORCED AIR
Stories
2.0
Total Bedrooms
4
Total Family Rooms
0
Total Rooms
7
Fireplaces
0
Other Buildings & Yards
Description
Built
Width
Length
Area
FRAME OR CB DETACHED GARAGE
1920
16
24
384
FRAME UTILITY SHED
1900
24
36
864
ONE SIDE OPEN WD POLE BLDG
1960
24
40
960
FLAT BARN
1956
36
84
3024
ATTACHED CB MILK HOUSE
1956
24
18
432
FLAT BARN ADDITION
1956
6
24
144
CONCRETE STAVE WITH ROOF
1900
16
38
7636
CONCRETE STAVE WITH ROOF
1900
12
32
3617
CONCRETE STAVE WITH ROOF
1900
12
30
3391
Sales History
Sale Date
Type
Price
Book / Page
Other Info
11/17/2017
LAND & BUILDING
175000
2017 / 025435
SPECIAL WARRANTY DEED
11/1/2016
LAND & BUILDING
0
2016 / 023757
FIDUCIARY DEED
5/20/1974
0
1120 / 0124
4/29/1965
LAND & BUILDING
0
0915 / 0106
DEED
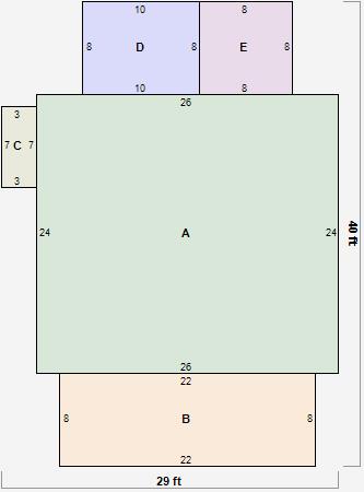
Parcel Sketches
Residential Card 1
A
MAIN
624 square feet
B
OFP OPEN FRAME PORCH
176 square feet
C
FRBAY FRAME BAY
21 square feet
D
FR UT FRAME UTILITY BUILDING
80 square feet
E
EFP ENCL FRAME PORCH
64 square feet
Parcel Images
Please note:
this tab is for informational purposes only and may not show all delinquencies, see the Taxes tab for more accurate delinquent taxes due.