Elected Officials
Courts
Departments
Initiatives
Open Government
About
Login / Register
Home
/
Property & Tax Records
/
Property Records
/
Property & Tax Search
/
Parcel Profile
/
Print View
Search for Another Parcel
Parcel Profile
Historical Card
Sketches
Photos
Tax Map
Taxes
Print View
Print This Page
Address: 13007 RIDGE RD
Parcel: 39024050001300
Parcel Profile
Address
13007 | RIDGE | RD
Street Status
PAVED
School District
NORTHWESTERN SCHOOL
Acreage
1.7200
Classification
R
Land Use Code
SINGLE FAMILY
Legal Description
13007 RIDGE RD 129X257 IRR
Square Feet
1352
Topo
LEVEL
Utility
WELL | SEPTIC | GAS
Zoning
Please contact your municipal zoning officer
Deed Book
2010
Deed Page
007656
2026 Tax Values
Land Value / Taxable
26,000 / 26,000.00
Building Value / Taxable
58,800 / 58,800.00
Total Value / Taxable
84,800 / 84,800.00
Clean & Green
Inactive
Homestead Status
Active
Farmstead Status
Inactive
Lerta Amount
0
Lerta Expiration Year
0
Residential Data
Card 1
Style
OLD STYLE
Basement
FULL
Year Built
1900
Exterior Wall
ALUMINUM/VINYL
Total Living Area
1352
Full Baths
1
Half Baths
0
Fuel Type
GAS
Heating
CENTRAL A/C
Heating System
FORCED AIR
Stories
2.0
Total Bedrooms
3
Total Family Rooms
0
Total Rooms
6
Fireplaces
0
Other Buildings & Yards
Description
Built
Width
Length
Area
FRAME OR CB DETACHED GARAGE
1930
22
22
484
Sales History
Sale Date
Type
Price
Book / Page
Other Info
4/8/2010
LAND & BUILDING
100000
2010 / 007656
WARRANTY/SURVIVORSHIP DEED
5/4/1973
0
1094 / 0665
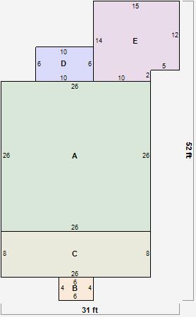
Parcel Sketches
Residential Card 1
A
MAIN
676 square feet
B
MA STOOP/TERR MAS STOOP
24 square feet
C
EFP ENCL FRAME PORCH
208 square feet
D
EFP ENCL FRAME PORCH
60 square feet
E
WDDCK WOOD DECKS
200 square feet
Parcel Images
Please note:
this tab is for informational purposes only and may not show all delinquencies, see the Taxes tab for more accurate delinquent taxes due.