Elected Officials
Courts
Departments
Initiatives
Open Government
About
Login / Register
Home
/
Property & Tax Records
/
Property Records
/
Property & Tax Search
/
Parcel Profile
/
Print View
Search for Another Parcel
Parcel Profile
Historical Card
Sketches
Photos
Tax Map
Taxes
Print View
Print This Page
Address: 12232 MAIN ST
Parcel: 39045010001900
Parcel Profile
Address
12232 | MAIN | ST
Street Status
PAVED
School District
NORTHWESTERN SCHOOL
Acreage
1.6300
Classification
R
Land Use Code
SINGLE FAMILY
Legal Description
12232 MAIN ST 1.63 AC CAL
Square Feet
1856
Topo
LEVEL
Utility
GAS | WELL | SEPTIC
Zoning
Please contact your municipal zoning officer
Deed Book
1180
Deed Page
0845
2026 Tax Values
Land Value / Taxable
25,800 / 25,800.00
Building Value / Taxable
56,350 / 56,350.00
Total Value / Taxable
82,150 / 82,150.00
Clean & Green
Inactive
Homestead Status
Active
Farmstead Status
Inactive
Lerta Amount
0
Lerta Expiration Year
0
Residential Data
Card 1
Style
OLD STYLE
Basement
PART
Year Built
1888
Exterior Wall
COMPOSITION
Total Living Area
1856
Full Baths
1
Half Baths
0
Fuel Type
GAS
Heating
CENTRAL
Heating System
FORCED AIR
Stories
2.0
Total Bedrooms
4
Total Family Rooms
1
Total Rooms
9
Fireplaces
0
Other Buildings & Yards
Description
Built
Width
Length
Area
FRAME OR CB DETACHED GARAGE
1940
18
42
756
DETACHED METAL GARAGE
2007
20
20
400
Sales History
Sale Date
Type
Price
Book / Page
Other Info
10/8/2004
LAND & BUILDING
98000
1180 / 0845
WARRANTY/SURVIVORSHIP DEED
7/5/2002
LAND & BUILDING
70000
897 / 1281
3/2/1990
0
0114 / 1199
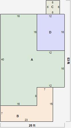
Parcel Sketches
Residential Card 1
A
MAIN
832 square feet
B
OFP OPEN FRAME PORCH
217 square feet
C
MA STOOP/TERR MAS STOOP
36 square feet
D
1S FR ONE STORY FRAME
192 square feet
Parcel Images
Please note:
this tab is for informational purposes only and may not show all delinquencies, see the Taxes tab for more accurate delinquent taxes due.