Elected Officials
Courts
Departments
Initiatives
Open Government
About
Login / Register
Home
/
Property & Tax Records
/
Property Records
/
Property & Tax Search
/
Parcel Profile
/
Print View
Search for Another Parcel
Parcel Profile
Historical Card
Sketches
Photos
Tax Map
Taxes
Print View
Print This Page
Address: 12272 W MAIN ST
Parcel: 39045010002001
Parcel Profile
Address
12272 | W | MAIN | ST
Street Status
PAVED
School District
NORTHWESTERN SCHOOL
Acreage
1.5180
Classification
R
Land Use Code
SINGLE FAMILY
Legal Description
12272 W MAIN ST LOT 3 1.518 AC NET
Square Feet
1884
Topo
LEVEL
Utility
GAS | WELL | SEPTIC
Zoning
Please contact your municipal zoning officer
Deed Book
2019
Deed Page
018072
2026 Tax Values
Land Value / Taxable
23,000 / 23,000.00
Building Value / Taxable
52,600 / 52,600.00
Total Value / Taxable
75,600 / 75,600.00
Clean & Green
Inactive
Homestead Status
Active
Farmstead Status
Inactive
Lerta Amount
0
Lerta Expiration Year
0
Residential Data
Card 1
Style
OLD STYLE
Basement
PART
Year Built
1864
Exterior Wall
ALUMINUM/VINYL
Total Living Area
1884
Full Baths
1
Half Baths
0
Fuel Type
GAS
Heating
CENTRAL
Heating System
HOT WATER
Stories
2.0
Total Bedrooms
4
Total Family Rooms
1
Total Rooms
8
Fireplaces
0
Other Buildings & Yards
Description
Built
Width
Length
Area
FOUR SIDE CLOSED WD POLE BLDG
1989
28
28
784
Sales History
Sale Date
Type
Price
Book / Page
Other Info
9/10/2019
LAND & BUILDING
0
2019 / 018072
CORRECTIVE DEED
1/16/2019
LAND & BUILDING
93000
2019 / 000908
FIDUCIARY DEED
11/3/1965
LAND & BUILDING
0
0928 / 0276
DEED
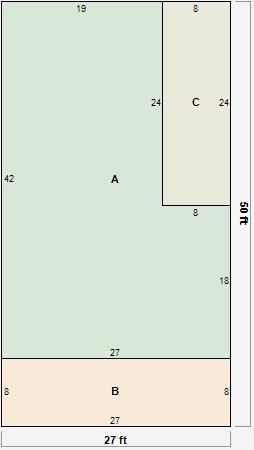
Parcel Sketches
Residential Card 1
A
MAIN
942 square feet
B
OFP OPEN FRAME PORCH
216 square feet
C
EFP ENCL FRAME PORCH
192 square feet
Parcel Images
Please note:
this tab is for informational purposes only and may not show all delinquencies, see the Taxes tab for more accurate delinquent taxes due.