Elected Officials
Courts
Departments
Initiatives
Open Government
About
Login / Register
Home
/
Property & Tax Records
/
Property Records
/
Property & Tax Search
/
Parcel Profile
/
Print View
Search for Another Parcel
Parcel Profile
Historical Card
Sketches
Photos
Tax Map
Taxes
Print View
Print This Page
Address: 12377 MAIN ST
Parcel: 39045018000100
Parcel Profile
Address
12377 | MAIN | ST
Street Status
PAVED
School District
NORTHWESTERN SCHOOL
Acreage
37.7200
Classification
F
Land Use Code
20 - 79.99 ACRES
Legal Description
12377 MAIN ST 37.72 AC CAL
Square Feet
1976
Topo
LEVEL
Utility
GAS | WELL | SEPTIC
Zoning
Please contact your municipal zoning officer
Deed Book
1532
Deed Page
1390
2025 Tax Values
Land Value / Taxable
81,700 / 25,700.00
Building Value / Taxable
87,400 / 87,400.00
Total Value / Taxable
169,100 / 113,100.00
Clean & Green
Active
Homestead Status
Inactive
Farmstead Status
Inactive
Lerta Amount
0
Lerta Expiration Year
0
Residential Data
Card 1
Style
OLD STYLE
Basement
FULL
Year Built
1900
Exterior Wall
ALUMINUM/VINYL
Total Living Area
1976
Full Baths
2
Half Baths
0
Fuel Type
GAS
Heating
CENTRAL
Heating System
FORCED AIR
Stories
2.0
Total Bedrooms
3
Total Family Rooms
1
Total Rooms
7
Fireplaces
0
Other Buildings & Yards
Description
Built
Width
Length
Area
FOUR SIDE CLOSED MTL POLE BLDG
1989
40
80
3200
1S LEAN TO
1950
10
30
300
FLAT BARN
1940
40
30
1200
METAL SHED
1970
8
14
112
Sales History
Sale Date
Type
Price
Book / Page
Other Info
11/24/2008
0
1532 / 1385
11/24/2008
LAND & BUILDING
0
1532 / 1390
QUIT CLAIM DEED
1/25/1980
0
1377 / 0136
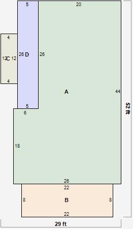
Parcel Sketches
Residential Card 1
A
MAIN
988 square feet
B
OFP OPEN FRAME PORCH
176 square feet
C
WDDCK WOOD DECKS
48 square feet
D
EFP ENCL FRAME PORCH
130 square feet
Parcel Images