Elected Officials
Courts
Departments
Initiatives
Open Government
About
Login / Register
Home
/
Property & Tax Records
/
Property Records
/
Property & Tax Search
/
Parcel Profile
/
Print View
Search for Another Parcel
Parcel Profile
Historical Card
Sketches
Photos
Tax Map
Taxes
Print View
Print This Page
Address: 12141 MAIN ST
Parcel: 39046018000700
Parcel Profile
Address
12141 | MAIN | ST
Street Status
PAVED
School District
NORTHWESTERN SCHOOL
Acreage
0.9679
Classification
R
Land Use Code
SINGLE FAMILY
Legal Description
12141 MAIN ST 155 X 272
Square Feet
1139
Topo
LEVEL
Utility
GAS | WELL | SEPTIC
Zoning
Please contact your municipal zoning officer
Deed Book
2019
Deed Page
008465
2026 Tax Values
Land Value / Taxable
26,200 / 26,200.00
Building Value / Taxable
47,200 / 47,200.00
Total Value / Taxable
73,400 / 73,400.00
Clean & Green
Inactive
Homestead Status
Active
Farmstead Status
Inactive
Lerta Amount
0
Lerta Expiration Year
0
Residential Data
Card 1
Style
BUNGALOW
Basement
PART
Year Built
1900
Exterior Wall
ALUMINUM/VINYL
Total Living Area
1139
Full Baths
1
Half Baths
0
Fuel Type
GAS
Heating
CENTRAL
Heating System
FORCED AIR
Stories
1.0
Total Bedrooms
2
Total Family Rooms
0
Total Rooms
5
Fireplaces
0
Other Buildings & Yards
Description
Built
Width
Length
Area
FRAME OR CB DETACHED GARAGE
1950
20
32
640
Sales History
Sale Date
Type
Price
Book / Page
Other Info
5/10/2019
LAND & BUILDING
85000
2019 / 008465
SPECIAL WARRANTY DEED
10/6/2011
LAND & BUILDING
0
2011 / 023911
WARRANTY/SURVIVORSHIP DEED
11/30/2007
LAND & BUILDING
70000
1463 / 0535
FIDUCIARY DEED
1/1/1964
0
903 / 23
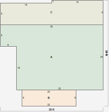
Parcel Sketches
Residential Card 1
A
MAIN
816 square feet
B
OFP OPEN FRAME PORCH
120 square feet
C
1S FR ONE STORY FRAME
323 square feet
Parcel Images
Please note:
this tab is for informational purposes only and may not show all delinquencies, see the Taxes tab for more accurate delinquent taxes due.