Elected Officials
Courts
Departments
Initiatives
Open Government
About
Login / Register
Home
/
Property & Tax Records
/
Property Records
/
Property & Tax Search
/
Parcel Profile
/
Print View
Search for Another Parcel
Parcel Profile
Historical Card
Sketches
Photos
Tax Map
Taxes
Print View
Print This Page
Address: 12031 MAIN ST
Parcel: 39046018001100
Parcel Profile
Address
12031 | MAIN | ST
Street Status
PAVED
School District
NORTHWESTERN SCHOOL
Acreage
0.7623
Classification
R
Land Use Code
SINGLE FAMILY
Legal Description
12031 MAIN ST 203 X 118 IRR
Square Feet
1892
Topo
LEVEL
Utility
GAS | WELL | SEPTIC
Zoning
Please contact your municipal zoning officer
Deed Book
2021
Deed Page
027176
2026 Tax Values
Land Value / Taxable
25,200 / 25,200.00
Building Value / Taxable
67,000 / 67,000.00
Total Value / Taxable
92,200 / 92,200.00
Clean & Green
Inactive
Homestead Status
Active
Farmstead Status
Inactive
Lerta Amount
0
Lerta Expiration Year
0
Residential Data
Card 1
Style
OLD STYLE
Basement
FULL
Year Built
1906
Exterior Wall
ALUMINUM/VINYL
Total Living Area
1892
Full Baths
1
Half Baths
0
Fuel Type
GAS
Heating
CENTRAL
Heating System
FORCED AIR
Stories
2.0
Total Bedrooms
4
Total Family Rooms
0
Total Rooms
9
Fireplaces
0
Other Buildings & Yards
Description
Built
Width
Length
Area
FRAME UTILITY SHED
2003
12
24
288
Sales History
Sale Date
Type
Price
Book / Page
Other Info
10/8/2021
LAND & BUILDING
0
2021 / 027176
QUIT/CLAIM SURVIVORSHIP
12/4/2007
LAND & BUILDING
41885
1464 / 0214
WARRANTY/SURVIVORSHIP DEED
10/14/2003
LAND & BUILDING
0
1075 / 1438
WARRANTY/SURVIVORSHIP DEED
9/21/2001
0
0811 / 0070
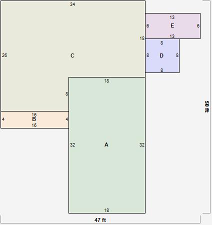
Parcel Sketches
Residential Card 1
A
MAIN
576 square feet
B
OFP OPEN FRAME PORCH
64 square feet
C
1S FR ONE STORY FRAME
740 square feet
D
EFP ENCL FRAME PORCH
64 square feet
E
EFP ENCL FRAME PORCH
78 square feet
Parcel Images
Please note:
this tab is for informational purposes only and may not show all delinquencies, see the Taxes tab for more accurate delinquent taxes due.