Elected Officials
Courts
Departments
Initiatives
Open Government
About
Login / Register
Home
/
Property & Tax Records
/
Property Records
/
Property & Tax Search
/
Parcel Profile
/
Print View
Search for Another Parcel
Parcel Profile
Historical Card
Sketches
Photos
Tax Map
Taxes
Print View
Print This Page
Address: 5401 ROUTE 215
Parcel: 39047016003100
Parcel Profile
Address
5401 | ROUTE 215
Street Status
PAVED
School District
NORTHWESTERN SCHOOL
Acreage
1.4000
Classification
R
Land Use Code
SINGLE FAMILY
Legal Description
5401 ROUTE 215 1.40 AC CAL
Square Feet
2481
Topo
ABOVE STREET
Utility
GAS | WELL | SEPTIC
Zoning
Please contact your municipal zoning officer
Deed Book
2022
Deed Page
006907
2026 Tax Values
Land Value / Taxable
25,300 / 25,300.00
Building Value / Taxable
95,600 / 95,600.00
Total Value / Taxable
120,900 / 120,900.00
Clean & Green
Inactive
Homestead Status
Active
Farmstead Status
Inactive
Lerta Amount
0
Lerta Expiration Year
0
Residential Data
Card 1
Style
OLD STYLE
Basement
FULL
Year Built
1900
Exterior Wall
ALUMINUM/VINYL
Total Living Area
2481
Full Baths
1
Half Baths
0
Fuel Type
GAS
Heating
CENTRAL
Heating System
FORCED AIR
Stories
2.0
Total Bedrooms
3
Total Family Rooms
0
Total Rooms
6
Fireplaces
0
Other Buildings & Yards
Description
Built
Width
Length
Area
FRAME UTILITY SHED
1985
10
12
120
FOUR SIDE CLOSED WD POLE BLDG
2003
24
48
1152
Sales History
Sale Date
Type
Price
Book / Page
Other Info
4/1/2022
LAND & BUILDING
0
2022 / 006907
QUIT CLAIM DEED
8/1/2019
LAND & BUILDING
0
2019 / 014849
QUIT CLAIM DEED
10/30/1998
0
0597 / 0357
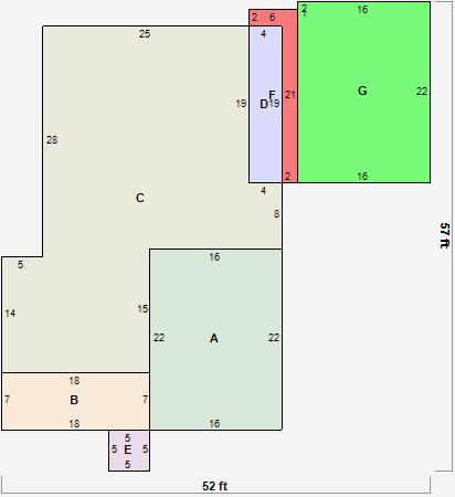
Parcel Sketches
Residential Card 1
A
MAIN
352 square feet
B
EFP ENCL FRAME PORCH
126 square feet
C
UNFIN BSMT BASEMENT UNFINISHED 1S FR ONE STORY FRAME 1/2FR FRAME HALF-STORY
972 square feet
D
OFP OPEN FRAME PORCH 1S FR ONE STORY FRAME
76 square feet
E
WDDCK WOOD DECKS
25 square feet
F
OFP OPEN FRAME PORCH
50 square feet
G
MA_PT CONC/MAS PATIO
352 square feet
Parcel Images
Please note:
this tab is for informational purposes only and may not show all delinquencies, see the Taxes tab for more accurate delinquent taxes due.