Elected Officials
Courts
Departments
Initiatives
Open Government
About
Login / Register
Home
/
Property & Tax Records
/
Property Records
/
Property & Tax Search
/
Parcel Profile
/
Print View
Search for Another Parcel
Parcel Profile
Historical Card
Sketches
Photos
Tax Map
Taxes
Print View
Print This Page
Address: 8270 PROCTOR RD
Parcel: 40009067001200
Parcel Profile
Address
8270 | PROCTOR | RD
Street Status
PAVED
School District
FORT LEBOEUF SCHOOL
Acreage
1.3760
Classification
R
Land Use Code
SINGLE FAMILY
Legal Description
8270 PROCTOR RD 1.376 AC
Square Feet
1248
Topo
LEVEL
Utility
PUBLIC WATER | GAS | SEPTIC
Zoning
Please contact your municipal zoning officer
Deed Book
1253
Deed Page
1529
2026 Tax Values
Land Value / Taxable
36,700 / 36,700.00
Building Value / Taxable
63,850 / 63,850.00
Total Value / Taxable
100,550 / 100,550.00
Clean & Green
Inactive
Homestead Status
Active
Farmstead Status
Inactive
Lerta Amount
0
Lerta Expiration Year
0
Residential Data
Card 1
Style
OLD STYLE
Basement
FULL
Year Built
1900
Exterior Wall
ALUMINUM/VINYL
Total Living Area
1248
Full Baths
1
Half Baths
0
Fuel Type
GAS
Heating
CENTRAL
Heating System
FORCED AIR
Stories
2.0
Total Bedrooms
4
Total Family Rooms
0
Total Rooms
7
Fireplaces
0
Other Buildings & Yards
Description
Built
Width
Length
Area
FRAME UTILITY SHED
1950
10
12
120
Sales History
Sale Date
Type
Price
Book / Page
Other Info
7/22/2005
LAND & BUILDING
14000
1253 / 1529
SPECIAL WARRANTY DEED
5/25/1990
0
0123 / 1564
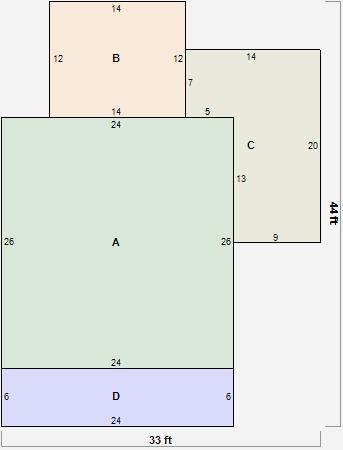
Parcel Sketches
Residential Card 1
A
MAIN
624 square feet
B
EFP ENCL FRAME PORCH
168 square feet
C
WDDCK WOOD DECKS
215 square feet
D
OFP OPEN FRAME PORCH
144 square feet
Parcel Images
Please note:
this tab is for informational purposes only and may not show all delinquencies, see the Taxes tab for more accurate delinquent taxes due.