Elected Officials
Courts
Departments
Initiatives
Open Government
About
Login / Register
Home
/
Property & Tax Records
/
Property Records
/
Property & Tax Search
/
Parcel Profile
/
Print View
Search for Another Parcel
Parcel Profile
Historical Card
Sketches
Photos
Tax Map
Taxes
Print View
Print This Page
Address: 150 HAROLD BLVD
Parcel: 40011036000200
Parcel Profile
Address
150 | HAROLD | BLVD
Street Status
SEMI IMPROVED
School District
FORT LEBOEUF SCHOOL
Acreage
0.5136
Classification
R
Land Use Code
SINGLE FAMILY
Legal Description
150 HAROLD BLVD 169.5 X 132
Square Feet
2765
Topo
LEVEL
Utility
WELL | SEPTIC
Zoning
Please contact your municipal zoning officer
Deed Book
0503
Deed Page
1350
2026 Tax Values
Land Value / Taxable
43,600 / 43,600.00
Building Value / Taxable
81,600 / 81,600.00
Total Value / Taxable
125,200 / 125,200.00
Clean & Green
Inactive
Homestead Status
Inactive
Farmstead Status
Inactive
Lerta Amount
0
Lerta Expiration Year
0
Residential Data
Card 1
Style
OLD STYLE
Basement
FULL
Year Built
1920
Exterior Wall
FRAME
Total Living Area
2765
Full Baths
1
Half Baths
0
Fuel Type
GAS
Heating
CENTRAL
Heating System
FORCED AIR
Stories
2.0
Total Bedrooms
3
Total Family Rooms
0
Total Rooms
6
Fireplaces
1
Other Buildings & Yards
Description
Built
Width
Length
Area
FRAME UTILITY SHED
1920
15
18
270
FRAME OR CB DETACHED GARAGE
1920
20
20
400
Sales History
Sale Date
Type
Price
Book / Page
Other Info
6/13/1997
LAND & BUILDING
135000
0503 / 1350
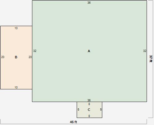
Parcel Sketches
Residential Card 1
A
MAIN
1152 square feet
B
OFP OPEN FRAME PORCH
200 square feet
C
MA STOOP/TERR MAS STOOP
40 square feet
Parcel Images
Please note:
this tab is for informational purposes only and may not show all delinquencies, see the Taxes tab for more accurate delinquent taxes due.