Elected Officials
Courts
Departments
Initiatives
Open Government
About
Login / Register
Home
/
Property & Tax Records
/
Property Records
/
Property & Tax Search
/
Parcel Profile
/
Print View
Search for Another Parcel
Parcel Profile
Historical Card
Sketches
Photos
Tax Map
Taxes
Print View
Print This Page
Address: 8690 PERRY HWY
Parcel: 40014086006100
Parcel Profile
Address
8690 | PERRY | HWY
Street Status
PAVED
School District
FORT LEBOEUF SCHOOL
Acreage
11.1000
Classification
F
Land Use Code
10-19.99 ACRES
Legal Description
8690 PERRY HWY 11.1 AC
Square Feet
1638
Topo
LEVEL
Utility
WELL | SEPTIC
Zoning
Please contact your municipal zoning officer
Deed Book
2012
Deed Page
005181
2026 Tax Values
Land Value / Taxable
44,900 / 41,200.00
Building Value / Taxable
84,530 / 84,530.00
Total Value / Taxable
129,430 / 125,730.00
Clean & Green
Active
Homestead Status
Inactive
Farmstead Status
Inactive
Lerta Amount
0
Lerta Expiration Year
0
Residential Data
Card 1
Style
RANCH
Basement
FULL
Year Built
1920
Exterior Wall
ALUMINUM/VINYL
Total Living Area
1638
Full Baths
2
Half Baths
0
Fuel Type
GAS
Heating
CENTRAL
Heating System
FORCED AIR
Stories
1.0
Total Bedrooms
4
Total Family Rooms
0
Total Rooms
6
Fireplaces
1
Other Buildings & Yards
Description
Built
Width
Length
Area
CONCRET PATIO, DETACHED
1970
0
0
196
Sales History
Sale Date
Type
Price
Book / Page
Other Info
2/29/2012
LAND & BUILDING
115000
2012 / 005181
SPECIAL WARRANTY DEED
9/4/1990
0
0135 / 2188
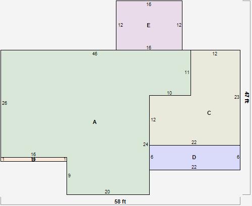
Parcel Sketches
Residential Card 1
A
MAIN
1226 square feet
B
FROVR FRAME OVERHANG
16 square feet
C
UNFIN BSMT BASEMENT UNFINISHED 1S FR ONE STORY FRAME
396 square feet
D
OFP OPEN FRAME PORCH
132 square feet
E
WDDCK WOOD DECKS
192 square feet
Parcel Images
Please note:
this tab is for informational purposes only and may not show all delinquencies, see the Taxes tab for more accurate delinquent taxes due.