Elected Officials
Courts
Departments
Initiatives
Open Government
About
Login / Register
Home
/
Property & Tax Records
/
Property Records
/
Property & Tax Search
/
Parcel Profile
/
Print View
Search for Another Parcel
Parcel Profile
Historical Card
Sketches
Photos
Tax Map
Taxes
Print View
Print This Page
Address: 8890 PEACH ST
Parcel: 40019083001000
Parcel Profile
Address
8890 | PEACH | ST
Street Status
PAVED
School District
FORT LEBOEUF SCHOOL
Acreage
16.9106
Classification
C
Land Use Code
GARAGES/SHOP/CAR DEALERS
Legal Description
8890 PEACH ST 16.9106 AC NET | 17.7104 AC GROSS | REF L2006-168 & L2010-23528
Square Feet
24171
Topo
ROLLING
Utility
ALL PUBLIC
Zoning
Please contact your municipal zoning officer
Deed Book
2020
Deed Page
023193
2026 Tax Values
Land Value / Taxable
542,400 / 542,400.00
Building Value / Taxable
2,020,500 / 2,020,500.00
Total Value / Taxable
2,562,900 / 2,562,900.00
Clean & Green
Inactive
Homestead Status
Inactive
Farmstead Status
Inactive
Lerta Amount
0
Lerta Expiration Year
0
Commercial Data
Card 1
AUTO DEALER/F-SEVICE
Business Living Area - 24171
Year Built - 2007
Improvement Name - PORRECO NISSAN
Value - 1800950
Other Buildings & Yards
Description
Built
Width
Length
Area
PAVING LIGHTED
2007
0
0
80000
Sales History
Sale Date
Type
Price
Book / Page
Other Info
11/2/2020
LAND & BUILDING
3450000
2020 / 023193
SPECIAL WARRANTY DEED
3/6/2006
LAND
427500
1310 / 1909
DEED
11/20/2002
0
0947 / 1462
2/16/1982
0
1447 / 394
1/14/1965
0
0909 / 0518
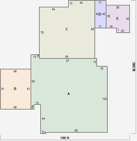
Parcel Sketches
Commercial Card 1
A
MAIN
12299 square feet
B
MAIN
2806 square feet
C
MAIN
6952 square feet
D
MAIN
714 square feet
E
MAIN
1400 square feet
Parcel Images
Please note:
this tab is for informational purposes only and may not show all delinquencies, see the Taxes tab for more accurate delinquent taxes due.