Elected Officials
Courts
Departments
Initiatives
Open Government
About
Login / Register
Home
/
Property & Tax Records
/
Property Records
/
Property & Tax Search
/
Parcel Profile
/
Print View
Search for Another Parcel
Parcel Profile
Historical Card
Sketches
Photos
Tax Map
Taxes
Print View
Print This Page
Address: 38 WARDEN ST
Parcel: 41003004000900
Parcel Profile
Address
38 | WARDEN | ST
Street Status
UNPAVED
School District
UNION CITY AREA SCHOOL
Acreage
0.8364
Classification
R
Land Use Code
SINGLE FAMILY
Legal Description
38 WARDEN ST 132 X 277 IRR
Square Feet
1075
Topo
LEVEL
Utility
ALL PUBLIC
Zoning
Please contact your municipal zoning officer
Deed Book
0465
Deed Page
1096
2025 Tax Values
Land Value / Taxable
14,200 / 14,200.00
Building Value / Taxable
46,800 / 46,800.00
Total Value / Taxable
61,000 / 61,000.00
Clean & Green
Inactive
Homestead Status
Active
Farmstead Status
Inactive
Lerta Amount
0
Lerta Expiration Year
0
Residential Data
Card 1
Style
BUNGALOW
Basement
FULL
Year Built
1910
Exterior Wall
ALUMINUM/VINYL
Total Living Area
1075
Full Baths
1
Half Baths
0
Fuel Type
GAS
Heating
CENTRAL
Heating System
FORCED AIR
Stories
1.0
Total Bedrooms
3
Total Family Rooms
0
Total Rooms
6
Fireplaces
0
Other Buildings & Yards
Description
Built
Width
Length
Area
FRAME UTILITY SHED
1980
10
12
120
FOUR SIDE CLOSED MTL POLE BLDG
2003
28
48
1344
Sales History
Sale Date
Type
Price
Book / Page
Other Info
10/8/1996
LAND & BUILDING
39900
0465 / 1096
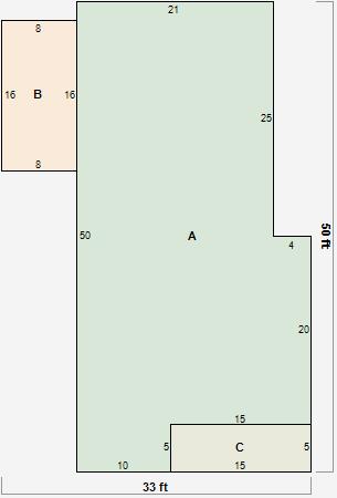
Parcel Sketches
Residential Card 1
A
MAIN
1075 square feet
B
OFP OPEN FRAME PORCH
128 square feet
C
EFP ENCL FRAME PORCH
75 square feet
Parcel Images