Elected Officials
Courts
Departments
Initiatives
Open Government
About
Login / Register
Home
/
Property & Tax Records
/
Property Records
/
Property & Tax Search
/
Parcel Profile
/
Print View
Search for Another Parcel
Parcel Profile
Historical Card
Sketches
Photos
Tax Map
Taxes
Print View
Print This Page
Address: 91 N MAIN ST
Parcel: 41003004001800
Parcel Profile
Address
91 | N | MAIN | ST
Street Status
PAVED
School District
UNION CITY AREA SCHOOL
Acreage
1.0000
Classification
R
Land Use Code
SINGLE FAMILY
Legal Description
91 N MAIN ST 88.4X495 IRREG
Square Feet
1438
Topo
LEVEL
Utility
ALL PUBLIC
Zoning
Please contact your municipal zoning officer
Deed Book
1541
Deed Page
0237
2026 Tax Values
Land Value / Taxable
15,000 / 15,000.00
Building Value / Taxable
41,200 / 41,200.00
Total Value / Taxable
56,200 / 56,200.00
Clean & Green
Inactive
Homestead Status
Inactive
Farmstead Status
Inactive
Lerta Amount
0
Lerta Expiration Year
0
Residential Data
Card 1
Style
OLD STYLE
Basement
FULL
Year Built
1850
Exterior Wall
FRAME
Total Living Area
1438
Full Baths
1
Half Baths
1
Fuel Type
GAS
Heating
CENTRAL
Heating System
FORCED AIR
Stories
1.0
Total Bedrooms
3
Total Family Rooms
1
Total Rooms
8
Fireplaces
0
Other Buildings & Yards
Description
Built
Width
Length
Area
FRAME OR CB DETACHED GARAGE
1930
12
20
240
Sales History
Sale Date
Type
Price
Book / Page
Other Info
6/28/1984
0
1541 / 0237
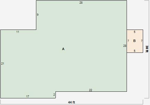
Parcel Sketches
Residential Card 1
A
MAIN
1027 square feet
B
OFP OPEN FRAME PORCH
35 square feet
Parcel Images
Please note:
this tab is for informational purposes only and may not show all delinquencies, see the Taxes tab for more accurate delinquent taxes due.