Elected Officials
Courts
Departments
Initiatives
Open Government
About
Login / Register
Home
/
Property & Tax Records
/
Property Records
/
Property & Tax Search
/
Parcel Profile
/
Print View
Search for Another Parcel
Parcel Profile
Historical Card
Sketches
Photos
Tax Map
Taxes
Print View
Print This Page
Address: 97 N MAIN ST
Parcel: 41003004001900
Parcel Profile
Address
97 | N | MAIN | ST
Street Status
PAVED
School District
UNION CITY AREA SCHOOL
Acreage
0.1154
Classification
R
Land Use Code
SINGLE FAMILY
Legal Description
97 N MAIN ST 51 X 110 IRREG
Square Feet
1869
Topo
LEVEL
Utility
ALL PUBLIC
Zoning
Please contact your municipal zoning officer
Deed Book
1178
Deed Page
1033
2026 Tax Values
Land Value / Taxable
9,000 / 9,000.00
Building Value / Taxable
45,300 / 45,300.00
Total Value / Taxable
54,300 / 54,300.00
Clean & Green
Inactive
Homestead Status
Inactive
Farmstead Status
Inactive
Lerta Amount
0
Lerta Expiration Year
0
Residential Data
Card 1
Style
OLD STYLE
Basement
PART
Year Built
1910
Exterior Wall
ALUMINUM/VINYL
Total Living Area
1869
Full Baths
1
Half Baths
0
Fuel Type
GAS
Heating
CENTRAL
Heating System
FORCED AIR
Stories
1.5
Total Bedrooms
2
Total Family Rooms
0
Total Rooms
6
Fireplaces
0
Other Buildings & Yards
No OBY Data Found
Sales History
Sale Date
Type
Price
Book / Page
Other Info
10/1/2004
LAND & BUILDING
36777
1178 / 1033
DEED
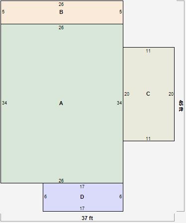
Parcel Sketches
Residential Card 1
A
MAIN
884 square feet
B
OFP OPEN FRAME PORCH
130 square feet
C
1S FR ONE STORY FRAME
220 square feet
D
1S FR ONE STORY FRAME
102 square feet
Parcel Images
Please note:
this tab is for informational purposes only and may not show all delinquencies, see the Taxes tab for more accurate delinquent taxes due.